Proiectul face parte dintr-un studiu urbanistic pentru zonele suburbane din afară inelului de autostradă al Ljubljanei.Ideea principală propusă este condensarea în mici grupări de sate legate între ele a aspectului tradiţional din mediul rural şi amplasarea longitudinală a caselor de-a lungul drumului cu o zonă verde în jurul acestora.
Aceste tipuri de loturi cu case, sunt ţintă pentru familiile tinere,pentru persoanele ce cauta sa evadeze din zonele urbane astfel devenind case de vacanta, sau pur si simplu pentru persoanele care nu îşi pot permite să trăiască în centru şi îşi caută propria casă cu grădină ce se pierde în verdele din jur.Pe de altă parte, ei dau viaţă ţesutului rural proaspăt creat.
O astfel de casă cu 3 dormitoare ,curte exterioară,parcare a fost proiectată la 180.000 euro, sumă ce reprezintă un buget pe care tinerele cupluri şi-l pot permite cu un împrumut bancar rezonabil.
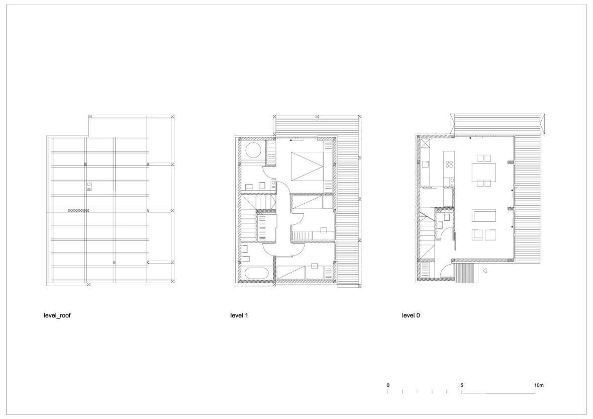
Prin urmare, conceptul de bază trebuie să se bazeze pe probleme economice, raţionale,flexibile şi o rezolvare cât mai simplă a casei dar să ofere un confort ridicat.Casele sunt formate din 2 etaje, cu o suprafaţa de 55mp fiecare.
Parterul e compus din living şi bucătărie cu spaţiu pentru depozitare.Livingul are posibilitatea de a se transforma în cameră pentru musafiri sau zonă de lucru.Zona de zi se deschide spre o terasă înălţată şi o grădină de mici dimensiuni.
Etajul reprezintă zona de noapte,fiind format din 3 dormitoare,2 băi şi o garderobă.Dormitoarele au de-a lungul lor o terasă cu pergolă.
Materialele folosite sunt lemnul atât la interior cât şi la exterior,apar şi zone tencuite, plăci fibrociment,sticlă.
Arhitect: OFIS arhitekti
Locatie: Podpec, Slovenia
Echipa proiect: Rok Oman, Spela Videcnik, Andrej Gregoric, Javier Carrera, Janez
Martincic, Katja Aljaz
Suprafata terenului: 420 mp
Suprafata desfasurata casa: 110 mp
Anul proiectului: 2006-2010Fotograf: Tomaz Gregoric
- Sursa: OFIS arhitekti / www.designboom.com
- arhipură – pur si simplu arhitectură …

















