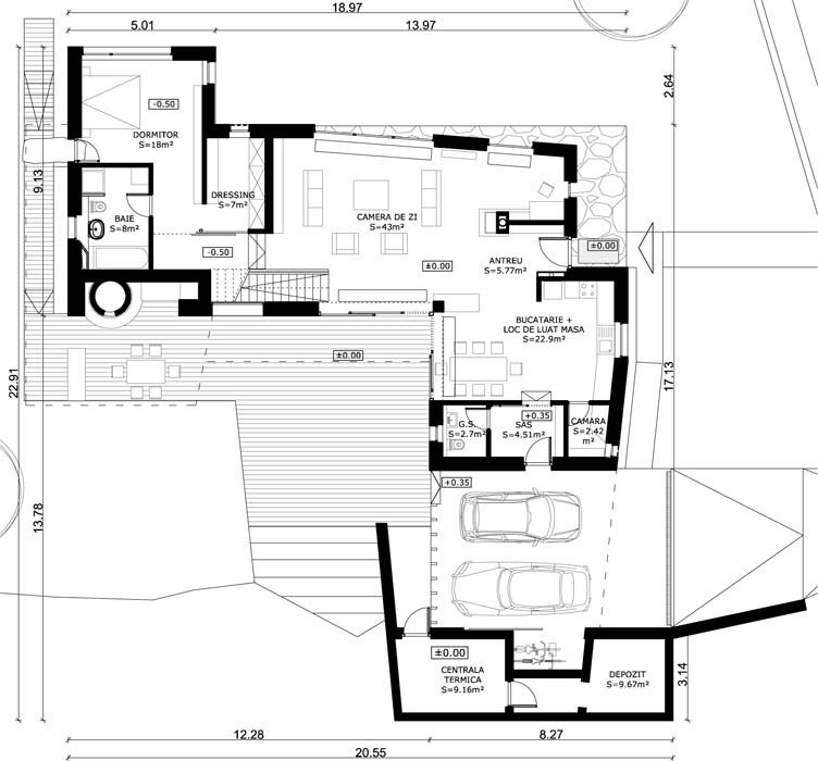
Terenul impune contextul pantei spre nord, ce ofera panorama orasului în vale si a muntilor în departare: în contrast cu orientarea favorabila a vietii cotidiene în relatie cu parcursul solar. Cladirea organizeaza astfel locuirea pe teren în jurul terasei orientate spre sud-vest, partial umbrita dinspre est si vest, pastrand modelul gospodariei traditionale, organizata în jurul curtii.
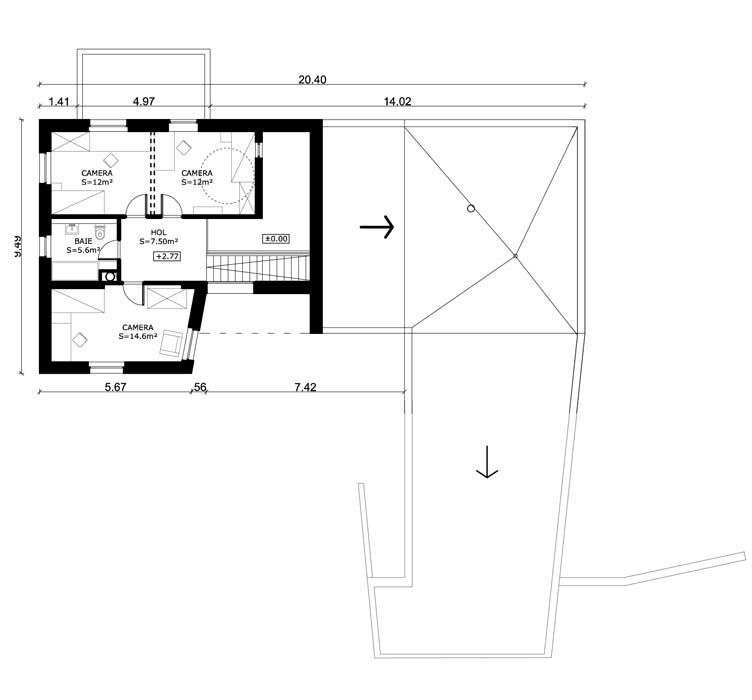
Terasa exterioara si spatiile functionale comune interioare sunt articulate, pe orizontala si verticala, în relatie cu topografia, panorama si orientarea optima. Doar spatiile intime si anexele sunt delimitate cu pereti. Zidurile casei si planseul acoperisului închid „doar” volumele spatiale astfel aranjate pe teren. Terasa exterioara, precum si vecinatatile imediate sau îndepartate sunt incluse traseelor vietii cotidiene, parcursul incluzand acoperisul ce completeaza topografia terenului.
Camera de zi si bucataria cu locul de luat masa sunt deschise spre terasa cu vitraj vast, partial umbrit pe timp de vara, beneficiind de aportul termic considerabil în lunga perioada rece, la care contribuie stratigrafia suprafetelor de închidere, calitatea tamplariilor si instalatiile edilitare.
Echipa tanara actionează eliberat de rutina, pur conceptual, proiectarea si executia este sustinuta de colegii cu experienta consistenta, iar executia este „manata” de avantul clientului cunoscator si deosebit de perseverent. Echipa de proiectare nu sta sa calculeze orele de munca, beneficiarul nu sta sa contabilizeze nervii si banii investiti. Grijile sunt toate purtate de vant urcand panta „casei”. Familia a crescut si în timpul construcției.
Arhitect: blipsz / BENEDEK István, PÁSZTOR István, Macalik Arnold
Locatia : Odorheiu Secuiesc
Anul proiectarii : 2010
Anul executiei : 2011 / in executie
Suprafata construita : 175 mp
Suprafata construita desfasurata : 245 mp
- Sursa: blipsz / www.arhiforum.ro
- arhipură – pur si simplu arhitectură …


















Un gând despre &8222;Casa moderna pe teren in panta&8221;