In contextul unui tesut urban in transformare efervescenta , aliniata cu constructii de data recenta , situata intr-o zona fara istorie urbanistica, constructia prezentata a devenit un polarizator de interes , fara sa se fi intentionat neaparat astfel .
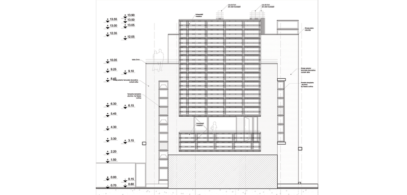
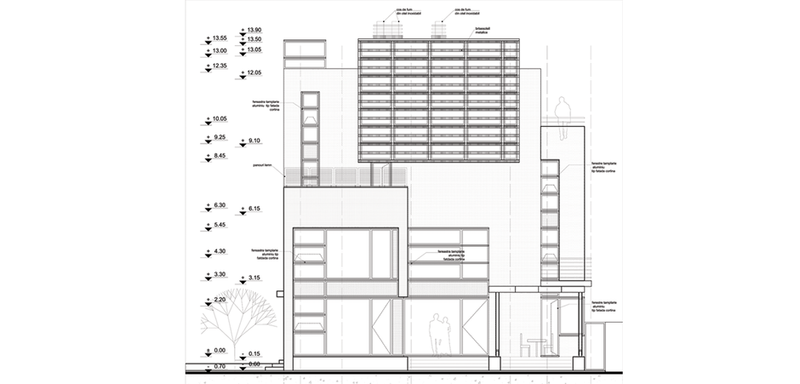
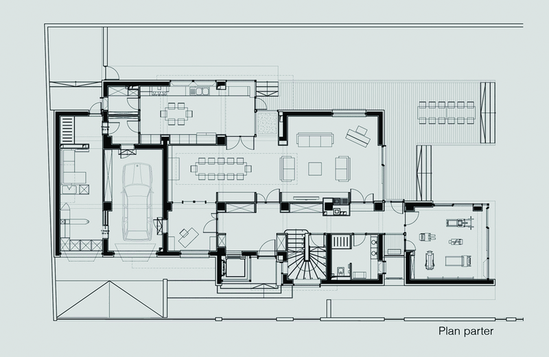
Tema la care a trebuit sa raspunda acest proiect a fost de adaptare a unei locuinte existente la solicitarea pe care a definit-o beneficiarul , pe parcursul utilizarii acesteia . Lucrarea reprezinta o extindere atat pe verticala cat si in plan a unei locuinte mai vechi, datand din anii 90, realizata pe atunci in stil modern. Constructia initiala era in forma de L, cu regim S+P+2E si ramane din punct de vedere volumetric unul dintre elementele compozitiei actuale.
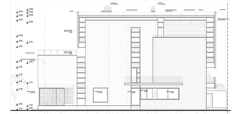
Compozitia actuala este insa una mai substantiala, fiind potentata de prezenta masica a mai multor volume noi, cum ar fi volumul nou S+P+1E, volumul de sticla al liftului ca si dominanta verticala, precum si o serie de planuri minerale sau cu o consistenta mai aerata care diversifica la randul lor compozitia. Rezultatul este unul total diferit, foarte contemporan si surprinzator de unitar pentru o paleta atat de variata de interventii, materiale, volume.
Pozitia si diversitatea volumelor redau senzatia de miscare, iar dinamismul nu este doar unul formal ci are si o componenta temporala, pastrandu-se in mod deliberat un element lizibil care sa aminteasca privitorilor initiati de originea stilistica a casei: cunoscatorii arhitecturii moderne vor regasi in nucleul central, in special in zona copertinei si intrarii, elemente compozitionale specifice modernismului amintind de originea mai veche a casei. Acest gest, asumat in mod deliberat de catre proiectanti este lasat ca un indiciu, exclusiv pentru cunoscatori.
Arhitect: DD Design Studio
Locatie: Bucuresti, Romania
Anul proiectarii/executiei : 2012
Suprafata desfasurata : 1200 mp
Fotograf : DD Design Studio






















