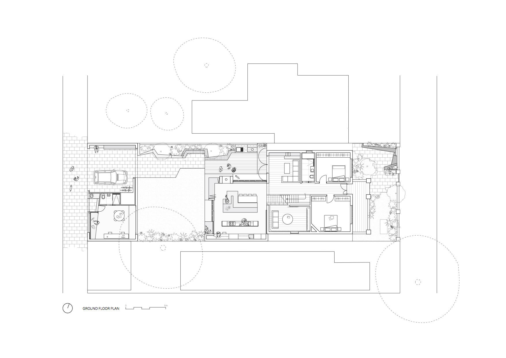
Echipa de la Make Architecture a venit cu o propunere interesanta pentru extinderea si recompartimentarea unei case unifamiliale din Melbourne. Aceasta face parte din tipologia locuintelor bungalou, dezvoltate pe un singur nivel si i-a fost adaugat un volum simplu cu acoperis in doua pante astfel incat sa se obtina un al doilea acces, prin zona de garaj / atelier. Spatiile deschise, organizate in jurul unor elemente centrale permit familiei sa gazduiasca multi invitati atat in interior cat si pe terasa.
Volumul nou a fost amplasat putin dezaxat astfel incat interioarele casei sa beneficieze in continuare de lumina naturala iar bucataria cu locul de luat masa sa poata comunica direct cu terasa si gradina. Betonul aparent din care sunt realizati peretii si parapetii noii extinderi pastreaza inca textura lemnului folosit pentru cofrare combinandu-se intr-un mod inspirat cu tamplaria, pardoseala terasei si peretele traforat realizate din diferite esente lemnoase.
Fatada posterioara, in dreptul dormitorului matrimonial de la etaj a fost inchisa cu un perete realizat din sipci orizontale si verticale, pozitionate la unghiuri si distante variate astfel incat creaza un detaliu interesant si acelasi timp protejeaza interiorul de soare si de privirile vecinilor. Acoperisul in doua ape coboara pe laterale, imbracand volumul intr-o anvelopanta uniforma, accentuand diferenta intre etajul opac, protejat si parterul public, inchis in vitraje mobile.
Un semineu cu dubla deschidere, un cuptor pentru pizza si banchete integrate in amenajarea gradinii ofera familiei si prietenilor o varietate de zone in care se pot relaxa si socializa. Suprafetele mobile asigura legatura intre zona de zi de la interior si spatiile amenajate in gradina. Pe masura ce se lasa seara familia se poate retrage la interior, intr-o zona deschisa separata doar prin intermediul unei scari suspendate ce functioneaza si pe post de biblioteca.
In spatele gradinii se afla garajul – atelier, un volum simplu de inaltime mica dar ale carui detalii si finisaje au fost gandite sa fie in ton cu arhitectura casei proaspat renovata. Prin intermediul unei usi vitrate glisante spatiul ajunge sa se deschida catre gradina si sa functioneze impreuna cu casa. Legatura cu straduta secundara este asigurata printr-o mica veranda si o bancheta cu jardiniera incastrata, invitand parca trecatorii la un moment de repaos.
Arhitect: MAKE architecture
Locatie: Saint Kilda, Australia
Anul proiectarii/executiei : 2014
Suprafata desfasurata : 150 mp
Fotograf : Julian Weyer

























4 gânduri despre &8222;Extinderea spectaculoasa a unei case unifamiliale | Australia&8221;