Casa este situată la marginea oraşului Vianen,Olanda.
Vederea spre partea de sud-vest este magnifică şi va rămâne neconstruită,oferind o vedere frumoasă ,un peisaj tipic olandez de câmpuri deschise, cu aliniamente de arbori.
Formă şi materialul folosit amintesc de modalităţile tradiţionale de a construi în mediul rural olandez.Clădirea are un caracter distinct, spre deosebire de casele prefabricate în stil rustic, învecinate.
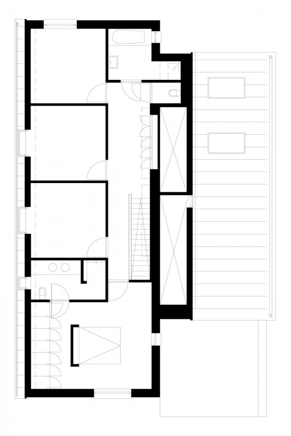
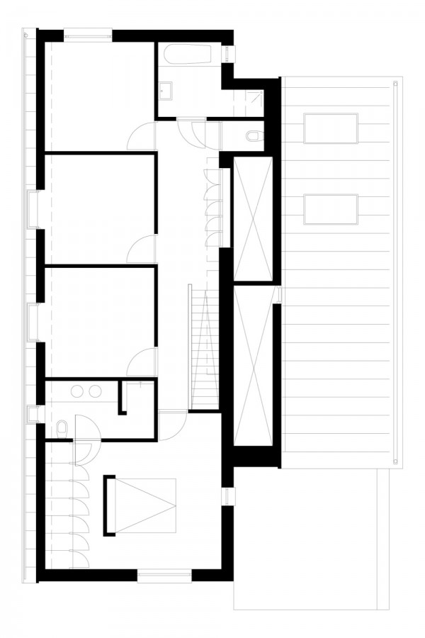
Casa este conceputa de la interior spre exterior, ca o serie de spaţii conectate. Fiecare spaţiu are propriul său caracter şi relaţie cu peisajul.
Arhitect: Grosfeld van der Velde Architecten
Locatie: Vianen, Olanda
Anul proiectului : 2004-2007
Fotograf: Michel Kievits
- Sursa: Grosfeld van der Velde Architecten / www.archdaily.com
- arhipură – pur si simplu arhitectură …












Un gând despre &8222;House Vvg / Casa in Olanda&8221;