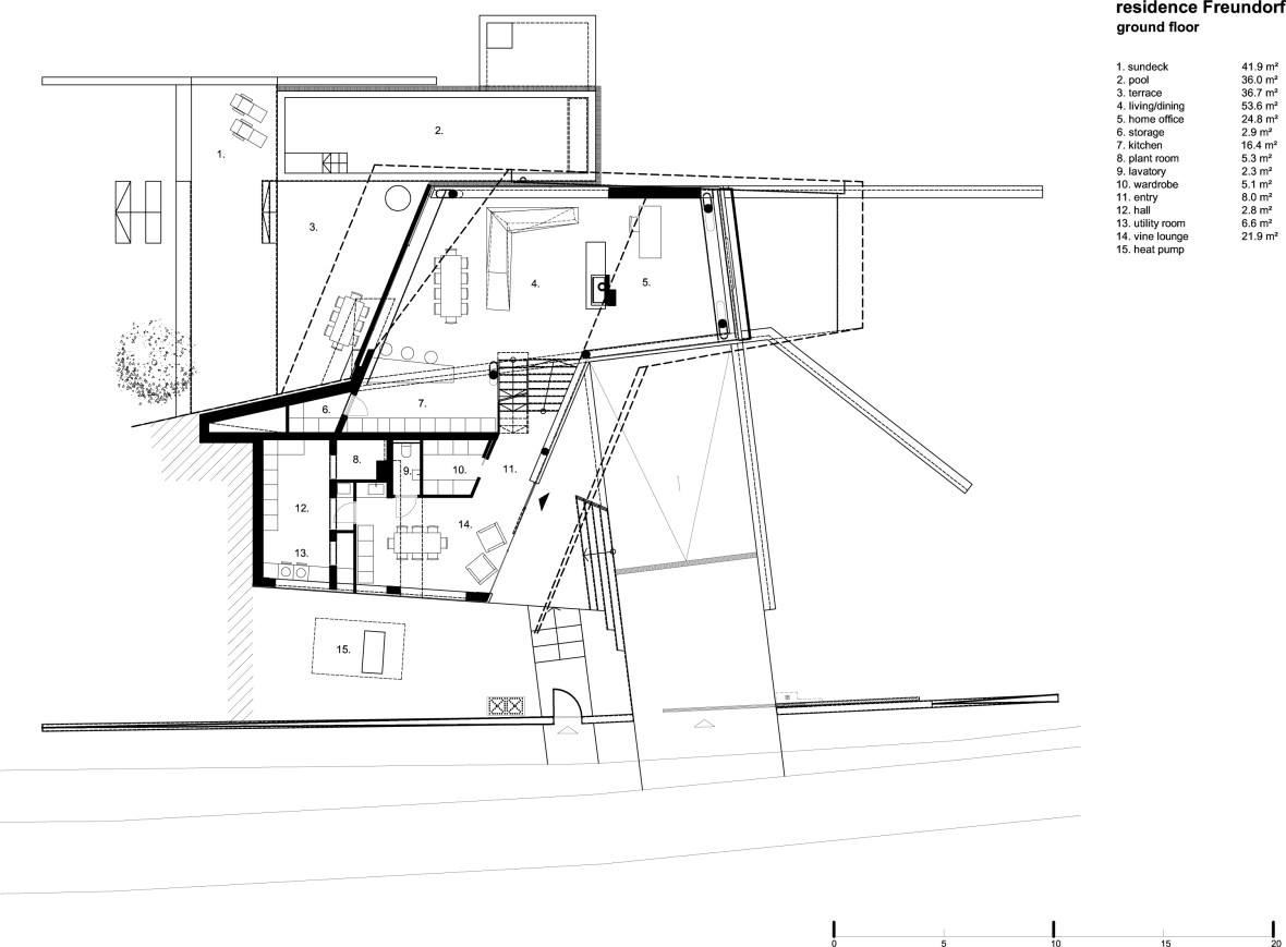
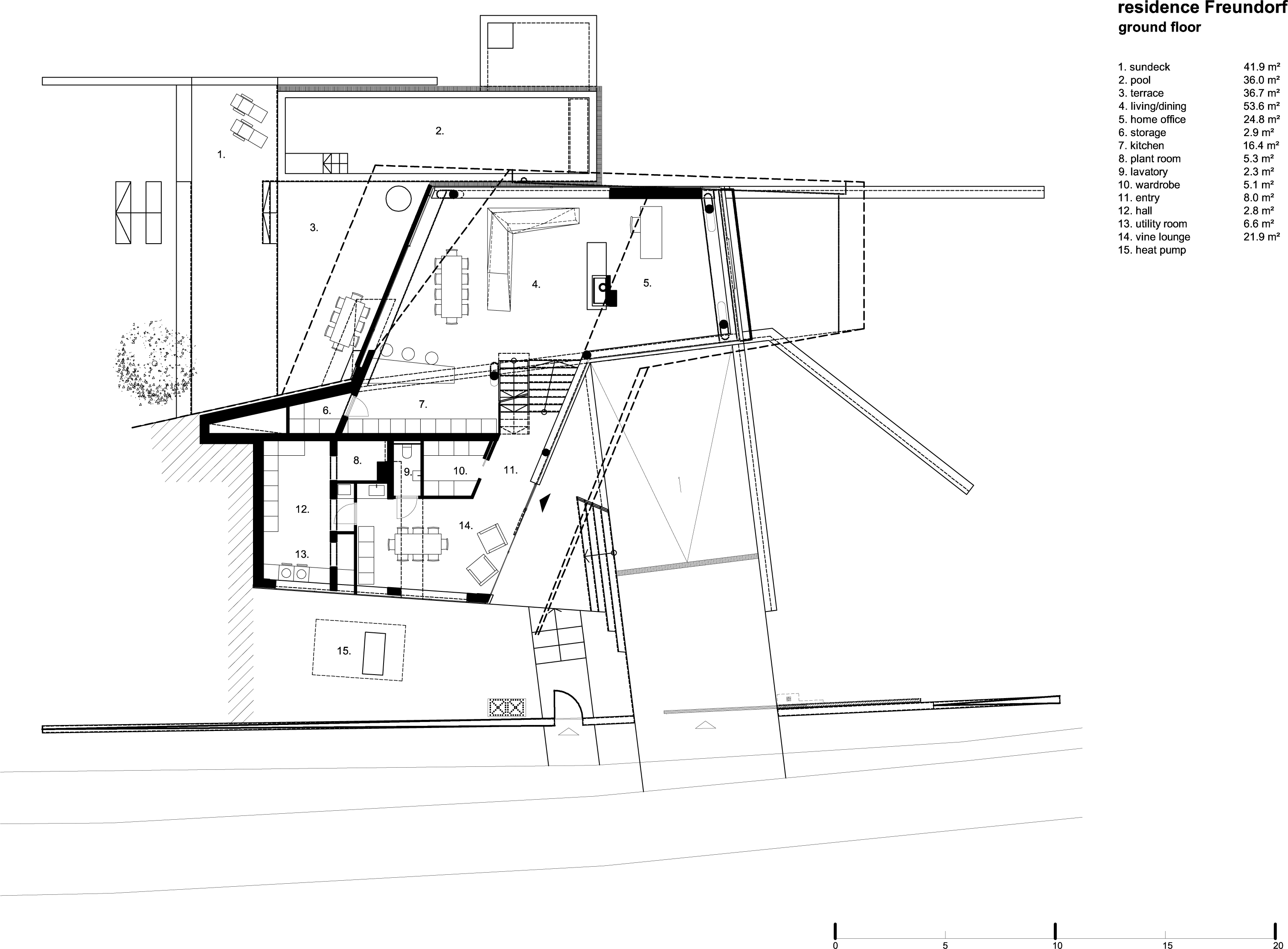
Casa e construită pe un mic deal, într-un sat în apropiere de Viena, pentru o familie tânără. Această clădire, paralelă cu strada de acces, este compusă din subsol, parter și un etaj. La subsol se află garajul și un spațiu pentru depozitare. Terasa din față oferă acces direct la grădină și la piscina.
Spre partea sudică a casei se află zona de oaspeți și cea destinată copiilor. La partea de nord, unde se află structura în consolă, se află dormitorul principal, cu acces la o terasă.Partea inferioară a construcției este realizată din beton armat. Placa este susținută de stâlpi din material compozit, și este ranforsată cu o structură metalică.
Fațadele corpului principal al clădirii sunt prevăzute cu ferestre mari, de la nivelul pardoselii până spre tavan. Partea de jos a pereților exteriori este placată parțial cu piatră de calcar provenind din Portugalia. Acoperișul este aproape orizontal, fiind acoperit cu membrane bituminoase, iar zona proeminentă din partea de nord protejează și intrarea în casă.
În interior domină culori deschise și materiale de calitate. Șemineul realizat din beton accentuează spațiul deschis din camera de zi.
Casa scării este deschisă și face legătura dintre toate zonele locuinței. La etaj se află un spa cu jacuzzi de 40 metri pătrați, precum și un dresing, combinând aceste două funcții și având o priveliște foarte frumoasă datorită ferestrelor foarte mari.Gradina și piscina sunt apropiate de terasa de lângă casă, făcând foarte ușor accesul la ele.
O notă de design foarte frumoasă constă în cele două prelungiri de beton, ca niște pinteni, care încadrează și mai bine casa în peisaj.
Arhitect: Project A01
Locatie: Viena, Austria
Anul proiectarii/executiei : 2010-2012
Suprafata desfasurata : 229 mp
Fotograf : Brigida Gonzales.
- Sursa: www.constructii-neamt.ro
- arhipura | pur si simplu arhitectură …
[en] __________________________________________________________________________________
A monolithic residence has been built for a young family in a village close to Vienna. On an exposed hillside plot the residential building is positioned as a solitaire. The sculptural object is surrounded by a generous garden designed by the owners gardening company. The spacious garden merges into the surrounding fields and the natural site. The main body of the building consists of two mutually shifted elements which follow the slope from north and south. By the horizontal displacement a high air space, forming the entrance and the central opening, is produced between the elements.
The building consists of a basement and a ground level, integrated in the landscape and the above -seated upstairs building. The basement includes the garage and storage rooms, half floor up is the entrance area with open wine lounge. The open air space opens up the higher-lying residential area of the ground floor. The spacious room includes an open kitchen and a separate work area. The front terrace offers direct access to the garden and pool area.
In the south-facing building part is the children´s and guest area located, in the north the cantilevering structure contains the master bedroom area with a terrace in front.The main construction is designed as a reinforced concrete construction. The floor structure rests on composite columns and is reinforced with a truss structure of steel.
The facades of the main building structure are designed as a cladding system, with floor to ceiling glazing. The visible external walls of the base are partially covered with a Portuguese limestone. The roof is designed as a membrane roof, the projecting area in the north covered the entrance area.
Inside dominate reduced colors and high quality materials. The open fireplace with a concrete block accentuate the open living room. The open staircase works as a split-level solution and thus connects all areas of the house. Particularly striking is the upper floor of 40m² with a large spa and dressing area that combines these two functions and offers a fantastic view. The garden with a pool is zoned and offering with a big terrace area, directly connecting the pool to the house. Different zones are generated and offer a sandy beach area, a party lounge and a play ground for the kids. The high-quality planting is positioned very well and thus the vastness of the land is maintained.
Architect: Project A01
Location: Vienna, Austria
Year: 2010-2012
Area : 229 mp
Photographs: Brigida Gonzales.
- Source: http://www.constructii-neamt.ro
- arhipura | pure and simple architecture …






















