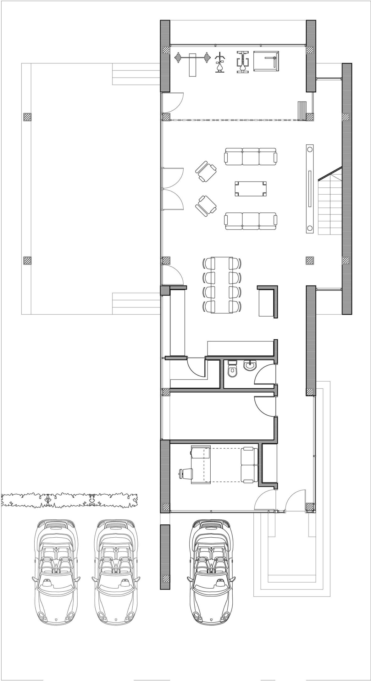
Prezentul proiect consta intr-o locuinta unifamiliala, parter si etaj, care rezolva necesitatile functionale ale unei tinere familii cu un stil modern de viata si locuire. Astfel accentul a fost pus pe dezvoltarea functionala si spatiala a zonei de zi, situata la parter, care se deschide spre o generoasa terasa exterioara complet acoperita de volumul etajului si partial inchisa perimetral, devenind astfel un spatiu exterior semi-inchis in continuarea camerei de zi interioare, optimizand astfel flexibilitatea functionala si spatiala a intregii zone de zi tratata in sistem deschis (camera de zi, loc de luat masa, bucatarie).
Finisarea celor trei planuri care definesc terasa exterioara cu un material care prin culoare si textura confera spatiului intimitate si apropiere – placajul de lemn pentru pereti si tavan si dalele de terasa in culori calde pentru pardoseala – compun ambianta aparte a acestui spatiu, element important in imaginea si atmosfera intregii locuinte. Spatiul de la etaj contine zona de noapte, amenajata minimal dar generos, conform cerintelor beneficiarului.
Conceptul functional si volumetric ales s-a bazat pe oferirea unor spatii cat mai generoase si expresive oferind in acelasi timp un control optim al pretului constructiei rezultate.
Sistemul constructiv folosit a fost astfel unul “clasic” – cadre (stalpi si grinzi) de beton armat cu inchideri de zidarie eficienta termic si panouri de termoizolante in tamplarie de aluminiu cu rupere de punte termica – expresivitatea cladirii fiind realizata din compozitia volumetrica simpla dar atent compusa astfel incat prin detalii si accente de culoare atent pozitionate sa dea personalitate si spectaculozitate compozitiei.
Arhitect: Gabriel Raicu | CUB Architecture
Locatie: preurban (Popesti-Leordeni)
Suprafata construita: 270 mp + terase
Dispunere nivele: P+1 etaj
Structura: cadre beton armat
Randari: Gabriel Raicu | CUB Architecture
- Sursa: Gabriel Raicu | CUB Architecture / www.cubarhitect.ro
- arhipură – pur si simplu arhitectură …















2 gânduri despre &8222;Casa ABPL | CUB Architecture / proiect casa 11&8221;