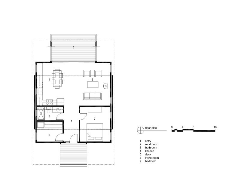
Cu scopul de a nu depasii bugetul clientului,s-a dorit un plan eficient si o selectie a materialelor cu un cost redus, ducand intr-un final la o cabana simpla de vacanta.Utilizarea placilor din lemn atât în interior cât şi la exterior a dus la maxim eficienta materialului folosit subliniind în acelaşi timp simplitatea formei cabanei.
Doi pereti din beton sustin volumul cabanei si ii permite sa stea in consola peste deal.Iesirea in consola a casei permite o vedere panoramica asupra muntilor din zona fara ca imaginea sa intalneasca vreun obstacol,transformând un spaţiu modesc de locuit dintr-o cameră obişnuită într-o platformă de vizionare care se extinde de la interior spre exterior.
Acest proiect demonstrează credinţa Balance Associates Architects , că soluţiile arhitecturale interesante pot fi realizate pentru bugete de toate mărimile, fără a sacrifica calitatea sau estetica sa.
Arhitect: Balance Associates Architects
Locatie: Winthrop, Washington, USA
Echipa proiect: Tom Lenchek AIA, Principal; Lauren Tindall Crocco AIA, Project Architect
Anul proiectului : 2007
Suprafata proiect : 79mp
Fotograf : Steve Keating
- Sursa: Balance Associates Architects / www.archdaily.com
- arhipură – pur si simplu arhitectură …















2 gânduri despre &8222;Cabana din padure&8221;