Casa este situată la limita dintre Timişoara și localitatea Dumbrăviţa într-unul dintre numeroasele cartiere nou edificate în această vecinătate. Zona în care se situează locuinţa are aceleaşi caracteristici ca mai toate noile lotizări satelit ale Timişoarei: este extrem de densă și aleator construită și este săracă în ceea ce priveşte vegetaţia.
Casa face notă discordantă cu vecinătăţile sale prin procentul si modul de ocupare al terenului şi prin tipul de acoperire și de vitrare.
Locuinţa este proprietatea unui cuplu tânăr cu doi copii. Aceştia şi-au dorit o casă de dimensiuni modeste a cărei construire să se inscrie într-un buget limitat, dar a cărei imagine să îi reprezinte.
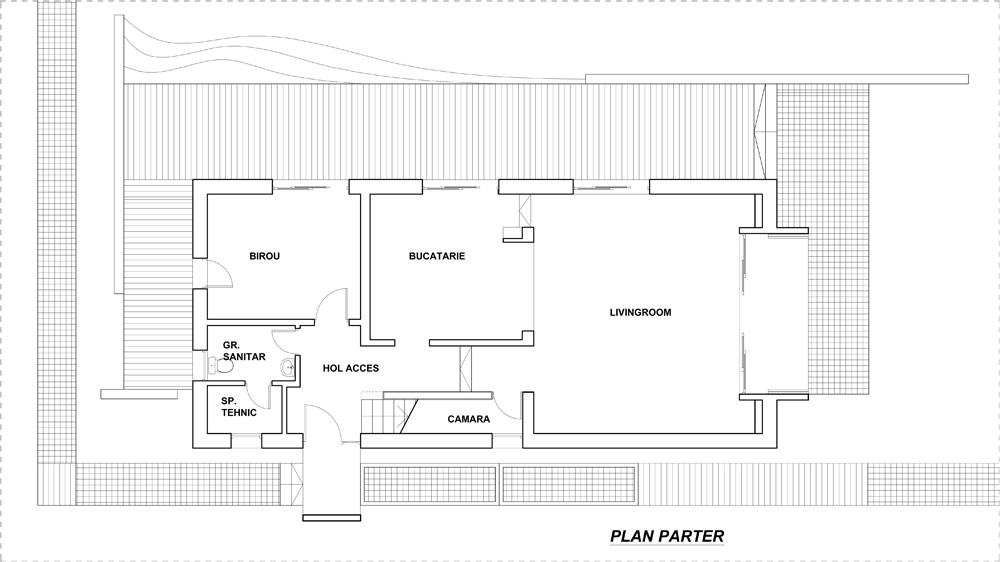
Soluţia rezultată se bazează pe o schemă planimetrică extrem de simplă şi clară şi preia o serie de elemente dintr-un limbaj devenit comun pentru un anumit tip de arhitectură: folosirea lemnului pentru placarea faţadelor, folosirea vitrajelor mari de tipul balcoanelor franţuzeşti, articularea negativă a registrelor parter şi etaj şi a acoperişului, folosirea unor materiale precum sticla la parapeţii exteriori sau lemnul pentru podina terasei, etc.
Interiorul încearcă să păstreze aceeaşi tendinţă minimală în exprimare. S-a recurs la rezolvarea unei întregi serii de spaţii de depozitare – dată fiind suprafaţa redusă – în nişe şi compartimente din mobilierul fix al casei, astfel încât acest tip de mobilier devine într-un fel, tema casei.
Arhitect: atelier TREI – Codruța NEGRULESCU, arh. Cosmin BLOJU
Locatie: Timisoara, Romania
Anul constructiei: 2004
Suprafata construita desfasurata : 207 mp
Fotograf : Ion Ileana
- Sursa: www.arhiforum.ro
- arhipură – pur si simplu arhitectură …
















Un gând despre &8222;Casa Florea | Timisoara&8221;