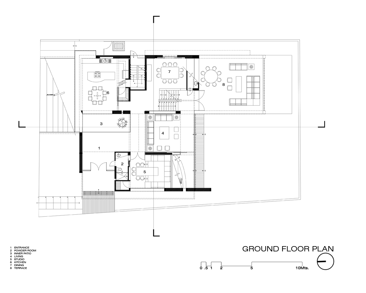
Casa este situata intr-un cartier privat, in afara orasului Jalisco, México. Terenul este plat si se invecineaza cu doua constructii la sud si est , in vest isi face prezenta o linie deasa de copaci ce separa casa de strada si o protejeaza de zgomot, iar in nord sunt amplasate ambele intrari: cea pentru pietoni si cea pentru masini.
Volumetric, cladirea e formata din doua corpuri orizontale, cel din stanga domina prin masivitatea pietrei gri cu care este placat si este asezat peste garaj, iar cel de al doilea corp este transparent si luminos, iese in consola si marcheaza accesul pietonal. Acest volum prezinta vitraj spre nord si vest fiind protejat de lumina soarelui de un grilaj din otel alb.
Accesul in casa se face pe o platforma ridicata de la nivelul strazii, astfel realizandu-se si garajul semi ingropat. Spatiul interior este complet deschis, cu aproximativ toate zidurile in aceiasi directie. Zona de zi se extinde spre exterior (gradina si piscina) si este protejat de consola generoasa a etajului superior.
Structura casei este din otel, fiind construita in timpul unei situatii in care acest material a fost achizitionat la un pret redus, astfel sunt justificate consolele si deschiderile generoase.
Spre strada acoperisul casei este de tip terasa si se inclina usor spre spatele terenului din cauza reglementarilor de constructie. Peretii sunt in mare parte netezi, podelele sunt din marmura si lemn, tamplaria este realizata in culori inchise.
Arhitect: Hernández Silva Arquitectos
Locatie: Zapopan, Jalisco, México
Anul constructiei: 2005-2007
Suprafata construita desfasurata : 380 mp
Fotograf : Hernández Silva Arquitectos
- Sursa: Hernández Silva Arquitectos / www.arquitour.com
- arhipură – pur si simplu arhitectură …































cati bani iti trebe sa iti faci asa o casa? 😀
destui:) putini isi permit asa ceva la noi in Romania, dar nu e imposibil…adica multi au banii, dar prefera sa isi faca niste hidosenii mari cu multe camere de te dai cu capul de pereti.
Munca grea trebuie sa duca un arhitect pana ar ajunge sa educe gusturile clientilor…..
pe mine nu ar trebui sa ma educe :)) asta e casa visurilor mele. Pentru prima data vad o casa si ma regasesc in ea, o ador. SI ma uit de mult timp la case ”cub”. Cand am vazut-o am zis si eu ca Adam : ASTA E :)) „IAta, IN SFARSIT”
Esti un caz fericit atunci.
Mai ramane sa gasesti un arhitect care sa iti puna pe foaie casa visurilor , o casa ce ar trebui sa iti satisfaca perfect toate nevoile. bafta