Aceasta casa esti situata in partea centrala a localitatii Budakeszi, Ungaria. Asezarea este caracterizata de cladiri cu acoperisuri înclinate perpendicular pe strada principala, realizate de multe ori cu un pridvor si cu o gradina intima alaturi si în partea din spate a cladirii.Curatenia si simplitatea pura din satele svabesti este o caracteristica notabila a acestor asezarii de astazi.
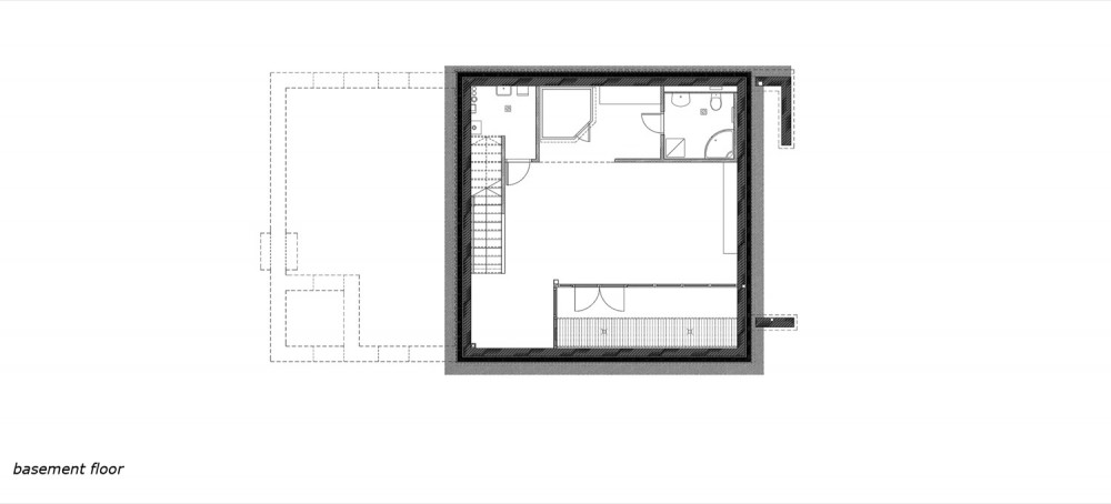
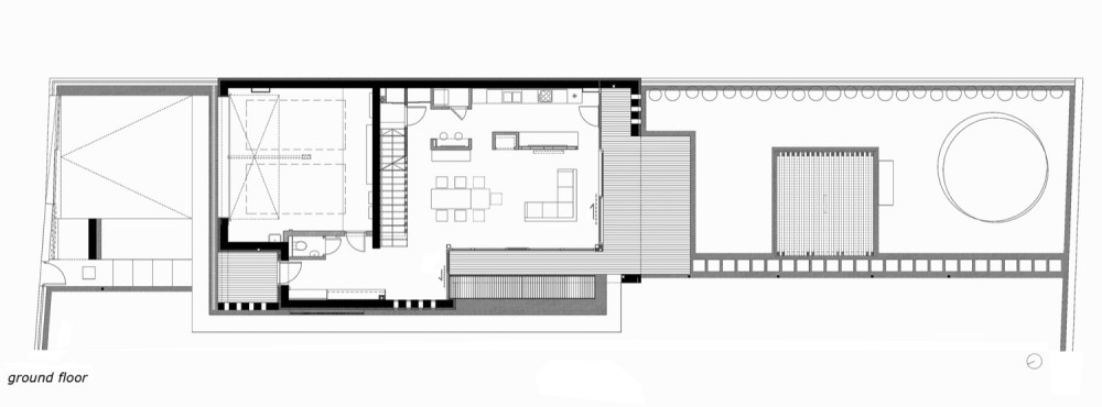
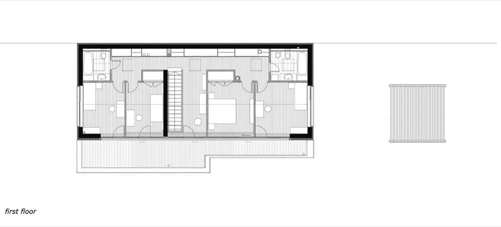
Casa este o transcriere a unei cladiri cu acoperis sarpanta in doua ape si pridvor. Case de acest gen se conecteaza la mediul lor prin zona gradinii, prin urmare, usa din fata si pridvor sunt pe partea cladirii, iar camerele sunt amenajate alaturi de portic.
Viziunea pridvorului a fost folosita ca un start-up si a fost transformat treptat si partial a disparut în timpul procesului de proiectare.
Proiectarea cladirii se bazeaza pe acest aspect clasic, dar în acest caz, pridvorul a fost transformat.Usa din fata este plasata în extensia care a fost adaugata la frontul stradal. Pridvorul, aici este inclus în masa cladirii si se retrage ca o substractie din volum si devine un adevarat pridvor deschis.
Arhitect: Tamás Mórocz
Locatie: Budakeszi, Hungary
Anul proiectarii/executiei : 2010- 2011
Suprafata desfasurata : 235 mp
Fotograf : Tamás Mórocz
- Sursa: www.archdaily.com
- arhipura | pur si simplu arhitectură …






























Au vrut sa faca din tantar armasar – acoperisul pare cu totul din alt film decat restul casei. Panouri fotovoltaice aruncate aiurea prin curtea plina de … pamant. Parerea mea ca mai puteau sa astepte cresterea gazonului sau decorarea curtii pana la realizarea pozelor.
Parile pot fi impartite, Mie personal imi place conceptul casei, chiar si materializarea lui.
Legat de acoperis, probabil ar fi aratat in opinia dvs. mai bine cu unul de tip terasa? Si da putea sa mai astepte pentru a prinde forma si gradina, acum probabil arata mult mai bine:)