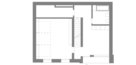
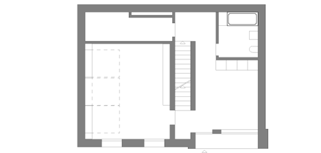
Aceasta casa de vacanta este amplasta pe un teren in panta ce ofera privelisti minunate spre Alpii Elvetieni si a fost proiectata de arhitectii Hurst Song Architekten .Casa fiind realizata pe un teren in panta, a fost nevoie de o escavare in sit pentru a se ajunge de la drum direct in garaj. Tot de aici se poate ajunge in interiorul casei cu ajutorul unei scari ce face legatura intre garaj si primul nivel.
S-a tinut cont de linia constructiilor din vecinatatea casei astfel acoperisul a fost realizat in sarpanta. Locuinta este orientata spre drumul principal si spre peisajul muntos. Pentru a reda imaginea vechiilor hambare din zona, exteriorul casei a fost placat cu scanduri de lemn de culoare inchisa pozitionate vertical . La nivelul acoperisului s-au folosit panouri din cupru care dupa finalizarea procesului de imbatranire vor ajunge la aceiasi nuanta inchisa asemenea scandurilor din lemn.
Desi casa ar trebui sa transmita o anumita caldura , datorita culorii lemnului aceasta nu e simtita. Acelasi lucru este intalnit si la interior unde domina sufrafetele din beton si lemn de brad. Betonul da senzatia de raceala pe cand lemnul, in cazul acesta deschis la culoare, incearca sa aduca o senzatie de caldura.
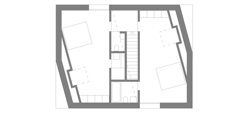
La nivelele inferioare domina materialele grele cum ar fi betonul, si este normal fiind in contact cu pamantul , iar treptat urcand la nivele superioare isi face simtita prezenta lemnul, ajungand ca la ultimul nivel tot interiorul sa fie realizat din lemn, de la pardoseala pana la pereti. Din punctul meu de vedere, putina culoare nu ar strica, dar probabil s-a pus accent mai mult pe textura materialelor.
Arhitect: Hurst Song Architekten
Locatie: Graubunden, Elvetia
Anul proiectarii-finalizarii : 2010
Fotograf : Hurst Song Architekten
- Sursa: Hurst Song Architekten / www.dezeen.com
- arhipură – pur si simplu arhitectură …































este foarte frumoasa casa de vacanta.
Am si eu de vinzare o casa in cantonul Berna.
O casa de 50 de ani care a fost complet renovata timp de un an.
0041/786045507