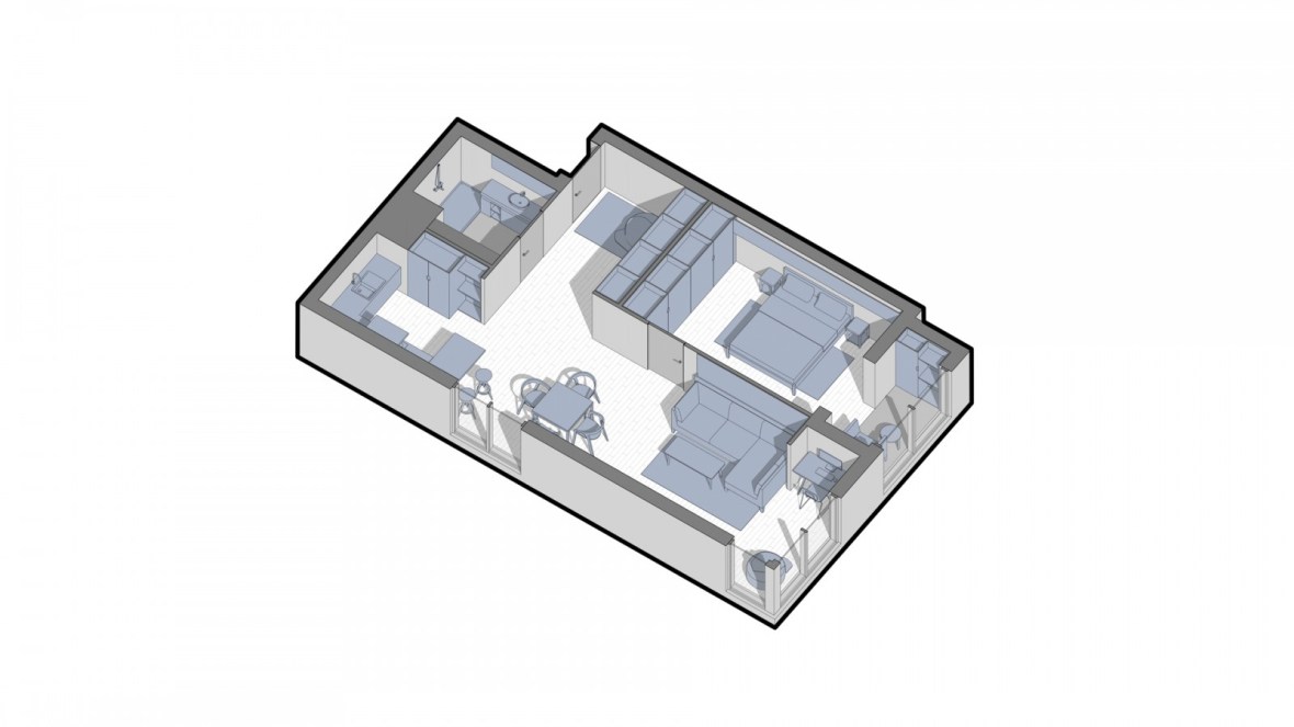
Interiorul apartamentului Mr. Grey cu doua camere este proiectat de Form’8 Studio , pentru un tanar intreprinzator si are un aspect ce defineste un tip burlac. Spatiul liber al bucatariei si al camerei de zi este sustinut de o nuanta gri intr-un stil modern. Spatiul de retragere, dormitorul, poarta doar functia de somn si odihna. Cu toate acestea, logia din aceasta zona extinde spatiul si il umple de lumina naturala, dar adauga si posibilitatea de petrecere a timpului liber dimineata sau seara la o ceasca de cafea sau citind o carte.












