Amplasament: Locuinta propusa în cadrul prezentului proiect este amplasata în Zona Câmpului strada VII nr.2, situata în cartierul Plopi, în partea de est a Timisoarei. Avem de-a face cu o parcela pe colt, cu doua fronturi stradale – unul pe latura nordica, al doilea pe latura vestica.
Tema acestui proiect era una de tip clasic : o casa pentru o familie de tineri cu doi copii, parter si mansarda/etaj. La parter sa fie organizate spatiile de zi – bucatarie, dining, living, birou/biblioteca de studiu – si cele tehnice; iar sus, spatiile de noapte – dormitoare, bai, si un living pentru copii. Casa sa fie cu acoperis sarpanta. Suprafata terenului:677mp.
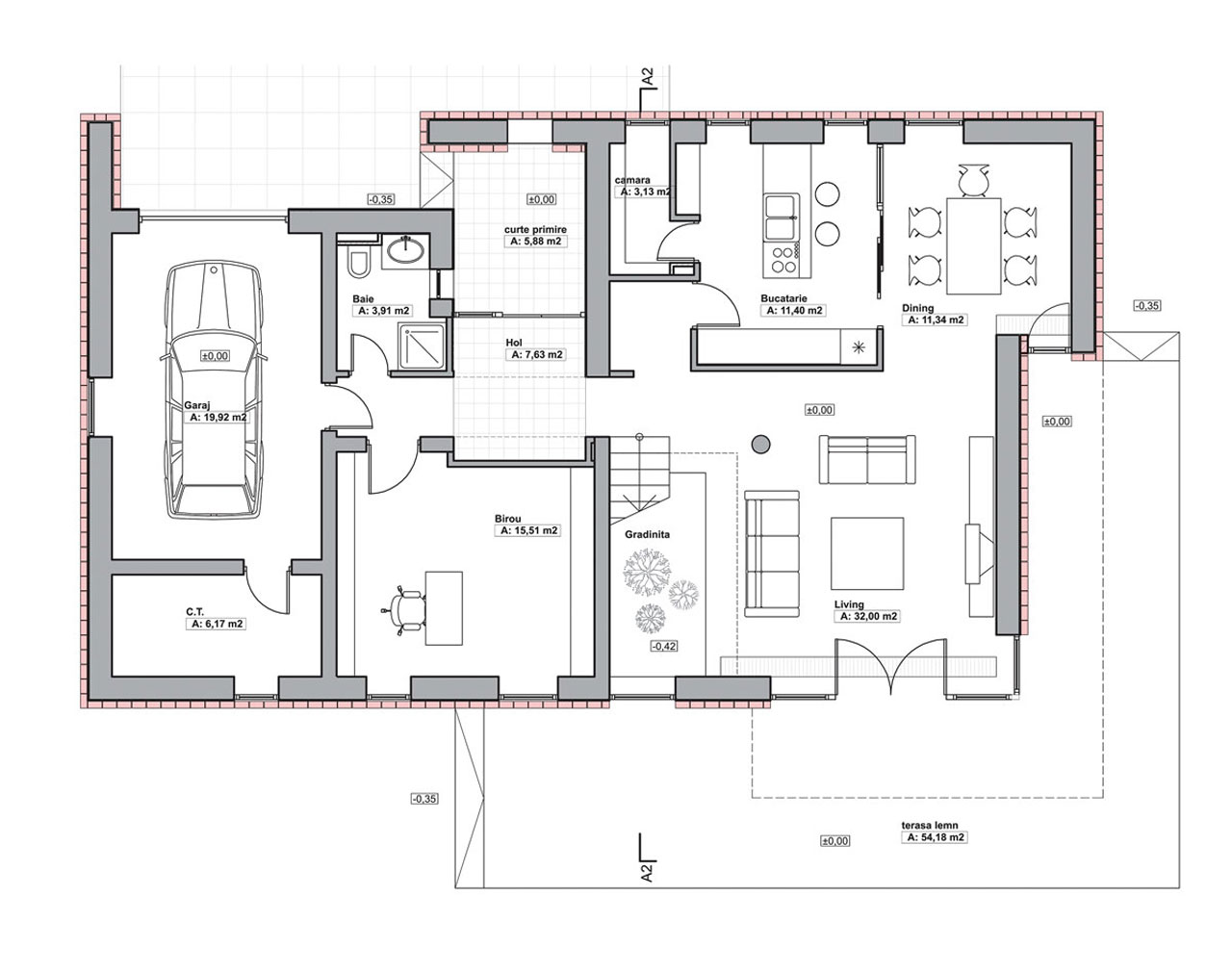
Conceptul proiectului este unul de invelisuri care se petrec, iar in zonele de suprapunere, spatiul interior intra in relatie cu cel exterior si se intrepatrund.
Regasim aceste zone la intrarea principala, in dreptul scarii interioare si la dining.
In zona intrarii principale, suprapunerea invelisurilor creeaza unui spatiu intermediar, o „camera exterioara” de primire, care patrunde in interior, acest fapt fiind marcat si de aceleasi finisaje la ext si la int – pardoseala, pereti.
In dreptul scarii interioare, unde se intrerupe invelisul, curtea „verde” din exteriorul casei patrunde in interior si se regaseste intr-o gradinita „verde” interioara.
Ca si finisaj invelisul este alcatuit din zidarie de caramida aparenta cu strat de aer ventilat ancorat prin intermediul unor tije din metal inoxidabil de zidul de inchidere din poroterm.
Spatiile intermediare amintite – intrarea si scara interioara – sunt marcate de un puternic ax vertical, prin care spatiul interior explodeaza pe verticala prin intermediul unor goluri zenitale, facand trimitere la relatia pamant-cer.
Gardul dinspre strada prezinta aparatul de intrare structurat pe acelasi principiu de invelisuri petrecute combinate cu jardiniere din beton aparent.
Functiunile „de zi” de la parter (cota ±0.00) – locul de luat masa(dining-ul), bucataria si livingul comunica direct, creand un spatiu fluid si continuu care expandeaza pe orizontala spre exterior prin intermediul unor usi glisante de sticla.
O scara interioara articuleaza, pe verticala, zona de zi de la parter si livingul de la etaj , fluidizand astfel spatiul si pe verticala.
Am urmarit cu grija amenajarea de interior – finisaje, mobilier – cat si o amenajare peisagera a gradinii din spate si a curtii din fata, gardul de delimitare a proprietatii, intrarea, etc.
[Arh. Oana Sirbu]
Arhitect: RIGHT HAND – Oana Sirbu
Locatie : Zona campului, TIMISOARA
Proiectare : 2005-2008
Constructie : 2008
Suprafata : 280 mp
Fotograf :Ovidiu Micsa
- Sursa: A_TA 2008
- arhipură – pur si simplu arhitectură …
















Superba si cu „bun gust”!!
Thanks great ppost