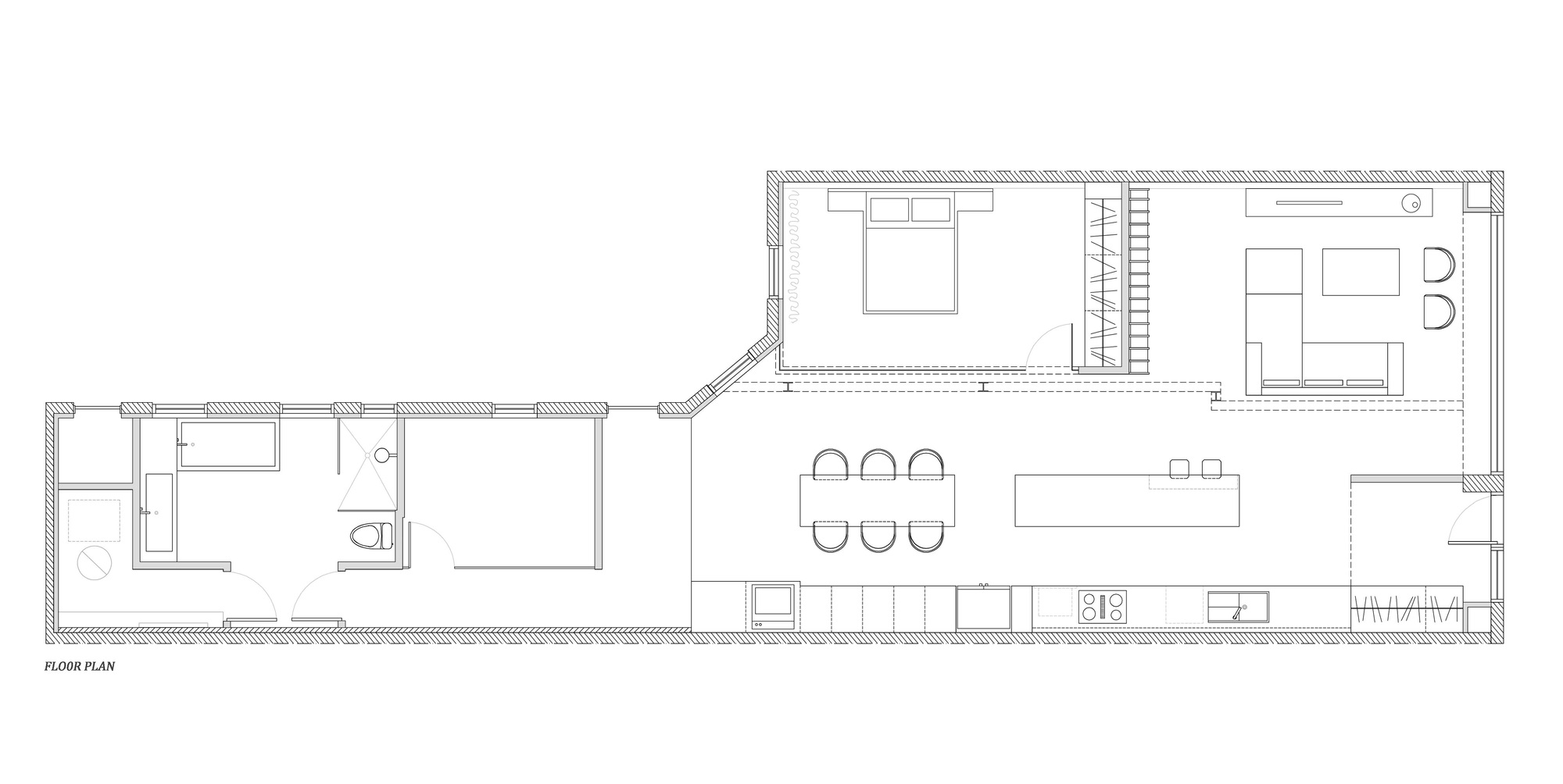
Renovarea indrazneata a acestei resedinte de 100 mp din Montreal, a fost realizata de un talentat designer canadian, Anne Sophie Goneau. Stilul abordat in design-ul apartamentului este unul rustic si modern in acelasi timp, cerinta principala fiind de a optimiza fiecare camera, respectand arhitectura existenta. Astfel, pereții goi, din caramida aparenta sau placați cu lemn rustic, sunt in contrast puternic, dar placut, cu griul luminos al podelei epoxidice si albul stralucitor al tencuielilor si al unor parti din mobilier.
In volumul principal, grinzile de otel delimiteaza vizual bucataria si camera de zi. Alaturi de alegerile structurale, mobilierul este redus la minimul necesar, pentru a nu supraincarca spatiul. Piesele de mobilier alese au o identitate puternica, aducand astfel un caracter definitoriu in intreaga locuinta.
























2 gânduri despre &8222;Renovarea indrazneata a unei resedinte de 100mp&8221;