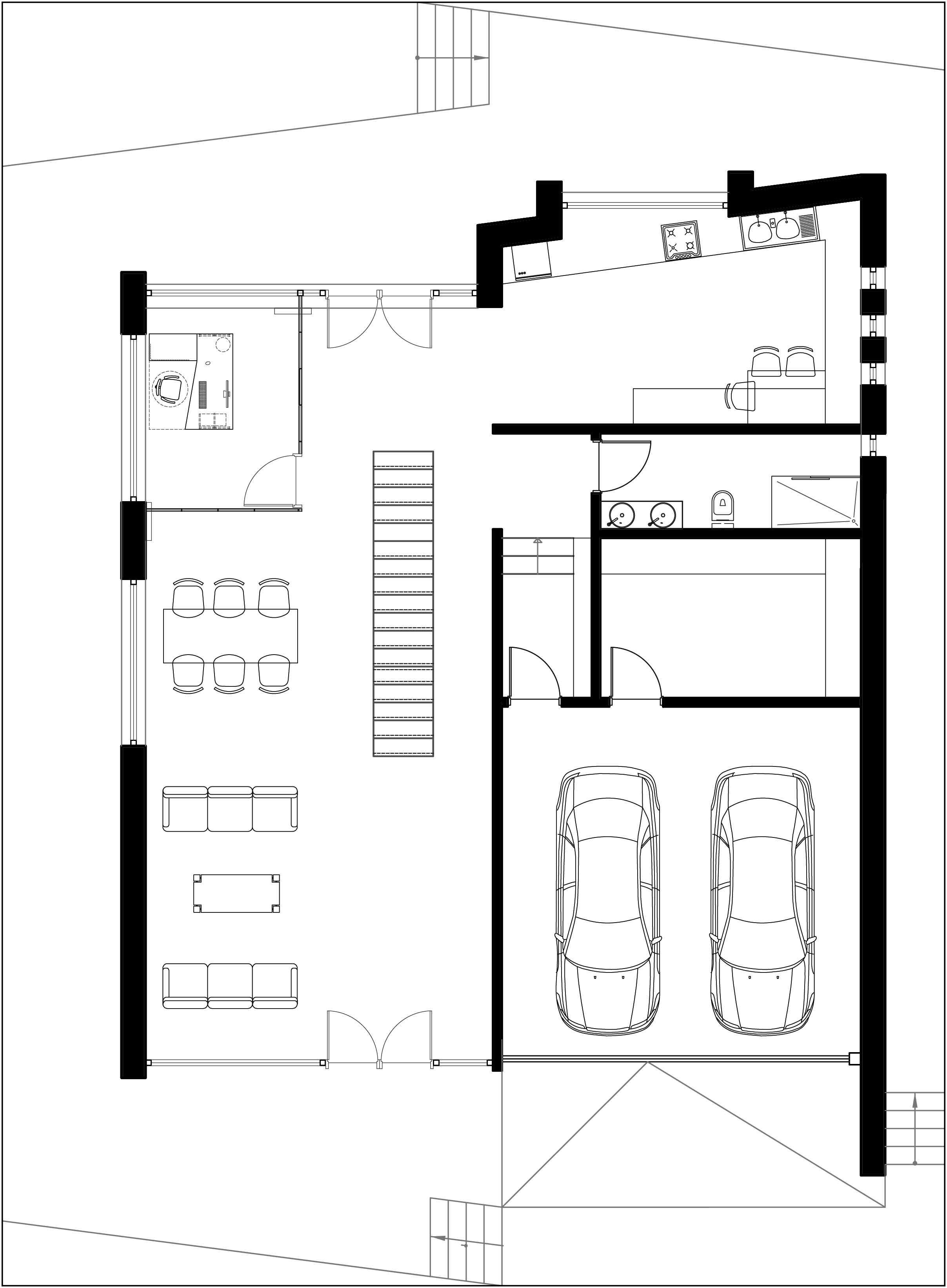
Conceputa ca un obiect de design ce pare ca sfideaza legile gravitationale, casa se inchide si deschide spre spatiul exterior in ritmul organic al fluxului functional al locuintei. Astfel zona de zi situata la parter se desface catre comuniune cu spatiul gradinii, in timp ce zona de noapte este adapostita intr-un gest arhitectural de efect prin consola care se metamorfozeaza in “palma” protectoare la etaj. Locuinta devine astfel mai mult decat scena functiunilor ei specifice, transformandu-se intr-un partener inanimat al unui dialog continuu cu locuitorii ei zi de zi.
Arhitect: Gabriel Raicu | CUB Architecture
Locatie: preurban (Pipera)
Suprafata construita: 450 mp
Dispunere nivele: P+1 etaj
Structura: cadre beton armat
Randari: Gabriel Raicu | CUB Architecture
- Sursa: Gabriel Raicu | CUB Architecture / www.cubarhitect.ro
- arhipură – pur si simplu arhitectură …













Imi place la nebunie ce-au realizat arhitectii cu aceasta casa!
Chiar interesanta.Pacat ca astfel de proiecte raman doar la nivelu de PROIECT si nu incep sa apara si prin orasele noastre romanesti
Da. Sunt de acord, pacat ca nu se si realizeaza in Romania. Arata foarte bine casa, proiectul.
My God! Are dreptate Frank Gehry saracul: 98% din ce se construieste si ce se proiecteaza in ziua de azi „is pure shit!”
🙂 sunt curios cum a ajuns la acest procent, dar daca asa este, proiectul acesta il incadrez in cei 2%