Beneficiarii stiau exact ce isi doresc: o casa pentru o familie tanara cu doi copii, parter si etaj. Casa se dorea sa fie in stil mediteranean (datorita numeroaselor excursii din zona Marii Mediterane) si sa lase aceasta impresie spre exterior, dar cand se paseste inauntru sa fie o „nebunie” la care sa nu te astepti, din spusele beneficiarilor, adica la interior sa se afle o succesiune de spatii deschise, la cote diferite de calcare, cu posibilitatea de a comunica si vedea din unul in altul. Cu mai putine cuvinte, arhitectii au identificat ca se cauta un interior raumplan.
Au incercat sa explice ca o astfel de abordare la interior isi lasa o amprenta destul de puternica si la exteriorul casei si nu se potriveste cu stilul mediteranean dorit. Pana la urma arhitectii au luat-o ca pe o provocare ce trebuie rezolvata, s-a facut un compromis reciproc, iar dupa mai multe variante au imbracat un interior in stil raumplan intr-o coaja mediteraneana. A fost o provocare interesanta, proiectul a necesitat cel putin 6 sectiuni pentru a putea fi bine inteles, atat de beneficiari cat si de restul colaboratorilor.
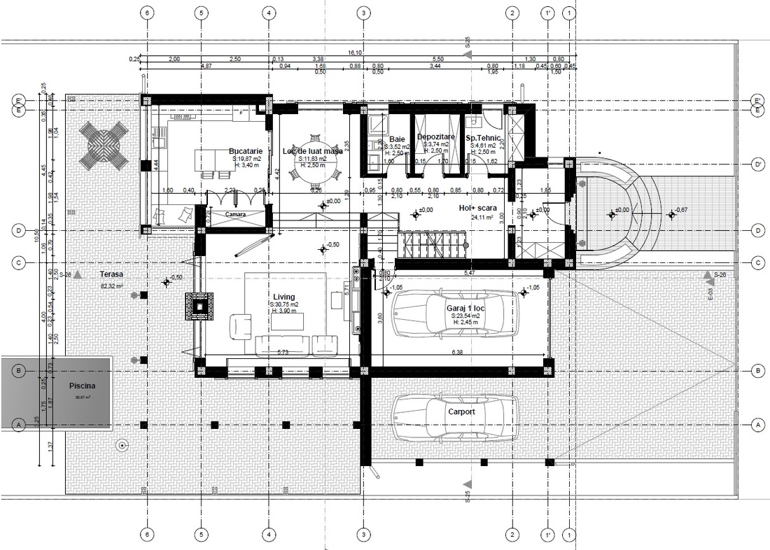
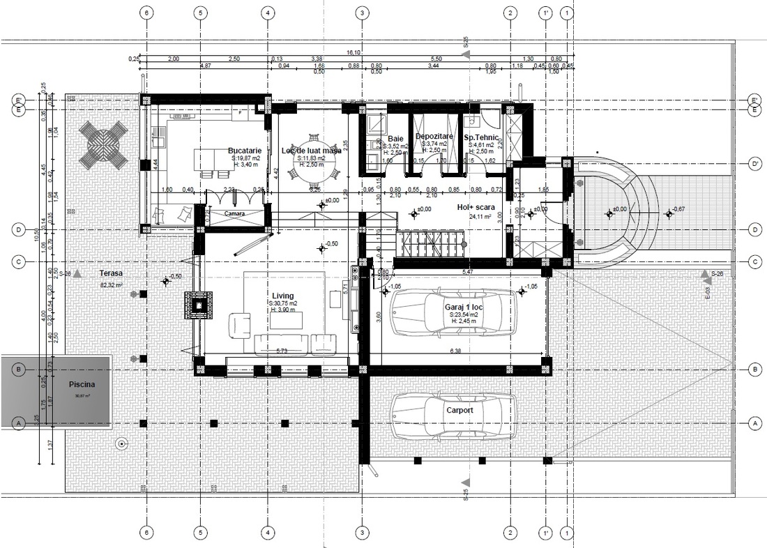
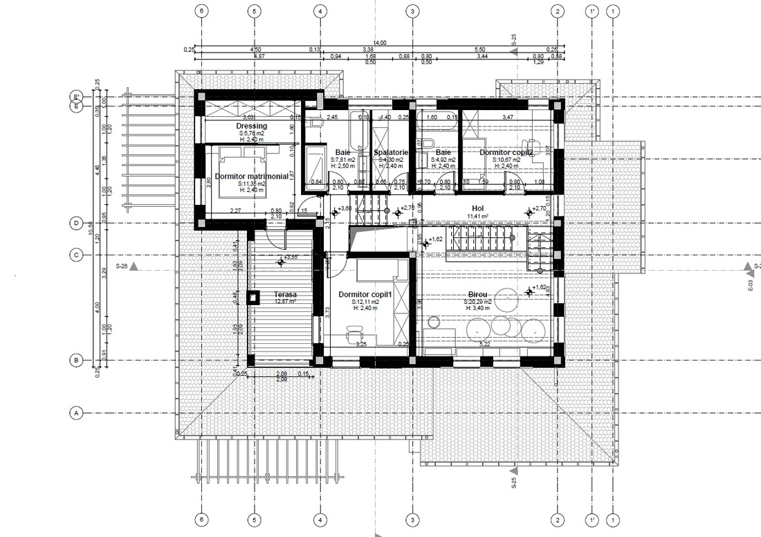
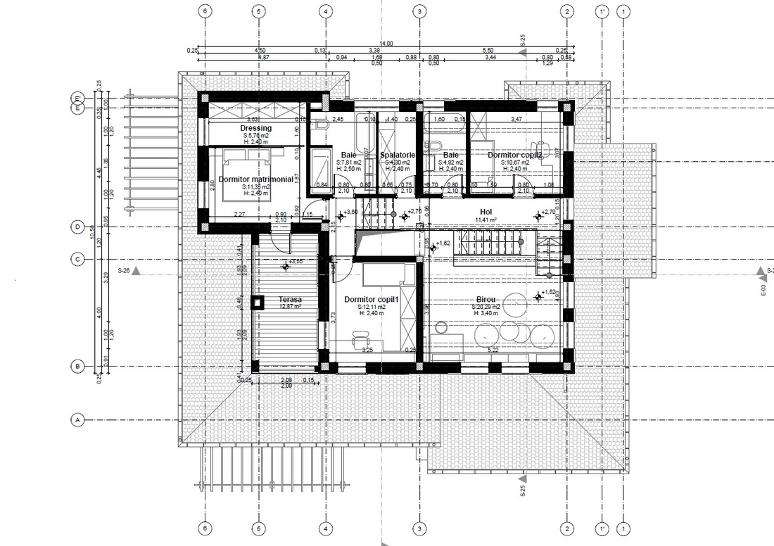
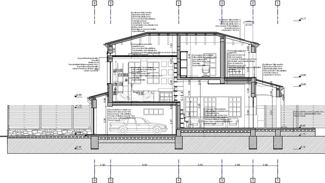
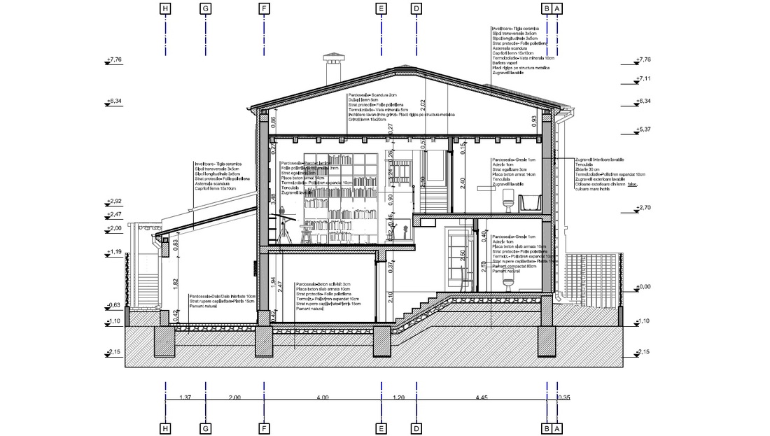
Din zona garajului se poate ajunge in holul de acces al casei. De aici se poate patrunde fie in zona de servire a mesei, bucatarie, camera de zi, dar si urcand cateva trepte in zona de birou/studio de pictura ce se afla deasupra de garaj. Aceasta zona este punctul inalt de unde se poate arunca o privire atat in living prin biblioteca inalta ce separa cele doua spatii, spre zona de servit masa, dar si spre dormitoarele copiilor. Zona de noapte este accesibila la o alta cota fata de birou/studio de pictura. Aici se afla camerele copiilor, baile, spalatoria iar in continuarea lor se afla dormitorul matrimonial cu terasa proprie spre gradina.
Zona camerei de zi are parte si de o terasa generoasa acoperita, amplasata spre sud, de unde se poate ajunge rapid in piscina racoritoare. O piscina ingusta, dar lunga strict pentru cateva ture de inot. La capatul piscinei se mai afla un foisor de unde pe o alee se poate ajunge la zona de gratar si micul beci tip „hobbit house” ascuns si acoperit de un deal de pamant.
Arhitect: Sabin Răciu | Răzvan Botofan
Locatie: Dumbravita, Timis, RO
Anul proiectarii : 2013
Suprafata desfasurata : 270 mp
Randari : Răzvan Botofan
- Sursa: www.fabricadeproiecte.com
- arhipura | pur si simplu arhitectură …
















Buna ziua, imi spuneți si mie lungimea si latimea casei ?
In jur de 11x16m, scrie pe planurile atasate