Proiectul consta intr-o locuinta parter cu etaj, conceputa intr-un stil minimalist astfel incat sa ofere maximum de expresivitate, spatiu si confort in interior, respectand impunerile urbanistice din zona.
Astfel s-a optat pentru o compozitie volumetrica cu un cadru opac care “imbraca” zonele mai intime ale teraselor exterioare si ale spatiilor vitrate pozitionate inspre laterale, oferind inspre zona publica a strazii o compozitie opaca dar in acelasi timp originala care ofera identitate locuintei in spatiul orasului. S-au obtinut in acelasi timp o serie de terase exterioare acoperite de acest cadru, fapt care sporeste confortul utilizarii spatiului locuintei si in acelasi timp da compozitiei o spectaculozitate aparte in ciuda dimensiunii medii a constructiei.
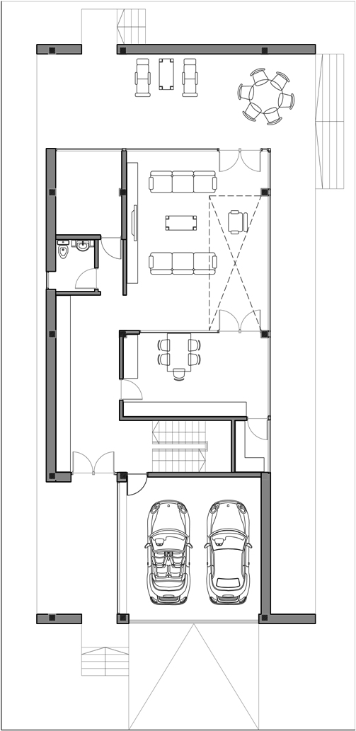
Spatiul exterior a fost astfel amenajat in acelasi timp cu cel interior, intr-o compozitie integratoare care ofera un parcurs variat din punct de vedere al intimitatii si atmosferei spatiului pentru spatiile incluse in cei 348,7 metri patrati desfasurati ai constructiei. Prin alegerea unui stil minimalist, s-a obtinut astfel un control mai bun al raportului calitate—pret resimtit in primul rand in valoarea si executia constructiei, concentrand efortul pe partea creativa a proiectului, astfel incat finisajele alese sa poata fi alese in functie de necesitatile si intentiile beneficiarului, fara sa afecteze partea estetica si expresivitatea integrului proiect.
Arhitect: Gabriel Raicu | CUB Architecture
Locatie: preurban (Oradea)
Suprafata construita: 348 mp + terase
Dispunere nivele: P+1 etaj
Structura: cadre beton armat
Randari: Gabriel Raicu | CUB Architecture
- Sursa: Gabriel Raicu | CUB Architecture / www.cubarhitect.ro
- arhipură – pur si simplu arhitectură …











3 gânduri despre &8222;Casa minimalista FB2 / proiect casa 14&8221;