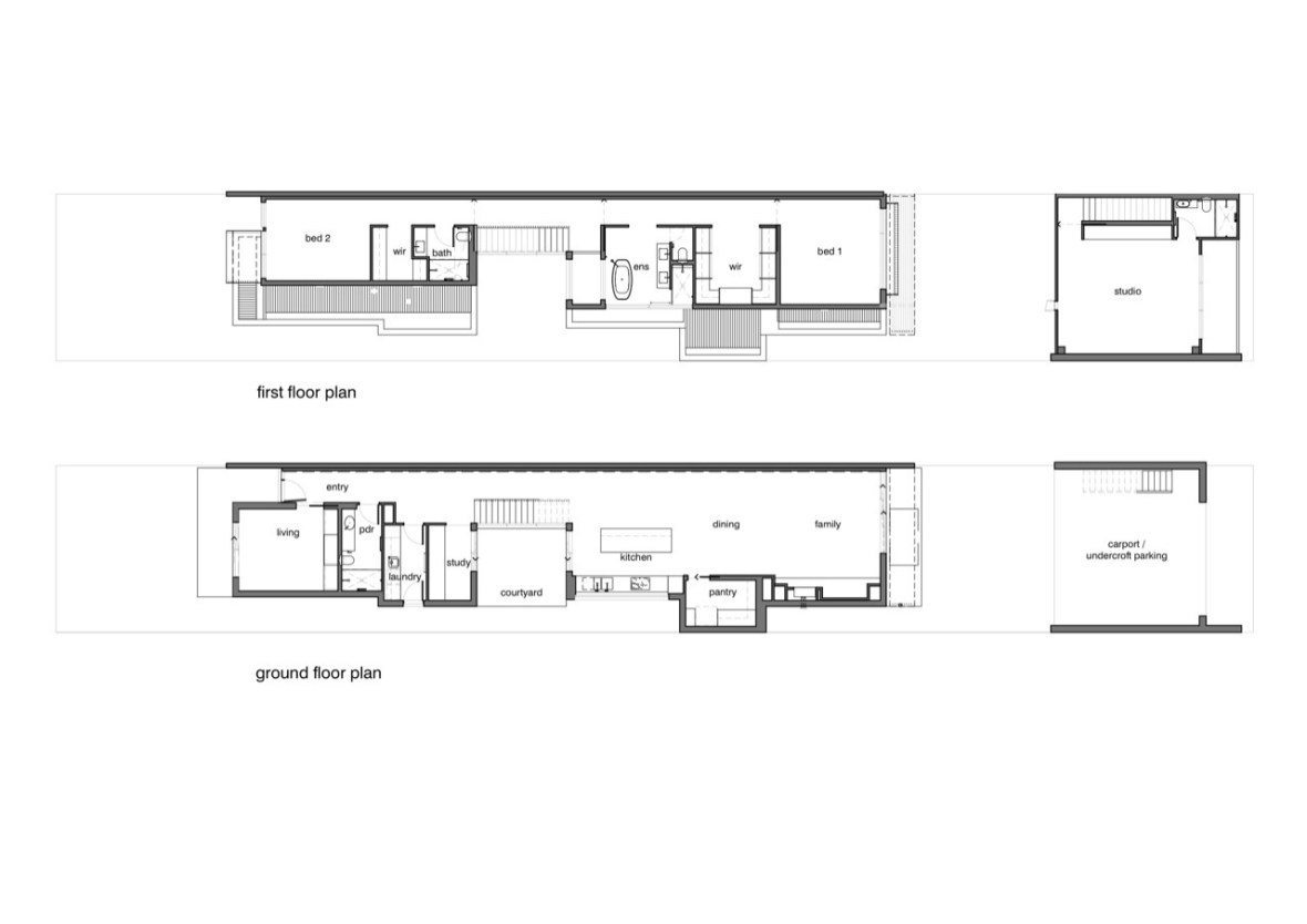
Elwood Townhouse este o casa minimalista, amplasata in Elwood, Australia, realizata in cadrul studioului de proiectare InForm. Pentru amenajarea de interior s-a utilizat o gama extinsa a nuantelor de alb si mult, mult lemn. Pentru exterior miza a cazut in utilizarea materialitatilor naturale: betonul, placaje metalice, lemn si sticla. La parter sunt amplasate bucataria, locul de luat masa, livingul si zona de noapte pentru oaspeti. La etaj, unde poti ajunge pe o minunata scara din lemn, au fost amplasate doua dormitoare si un studio mare pentru yoga unde au loc sesiuni de yoga de patru ori pe saptamana .



















