Inca din schitele initiale ale acestui proiect modern a aparut forma simpla si eficienta a unui cub. Rigiditatea formei si culoarea deschisa a acestuia au tras dupa sine nevoia unui element cald „LEMNUL„, care apare ca accent si rol decorativ, reancorand volumul in sfera rezidentiala. Volumul relativ mic si compact a dictat o anumita abordare a intregii teme de locuit: usi glisante, lipsa caloriferelor pe pereti, transparente vizuale…
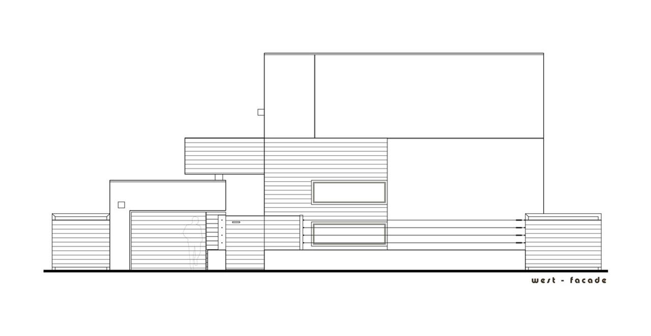
De asemenea proiectul casei combina contrastele dintre privat si public, opac si transparent, umbra si lumina. De aici rezultand fatada putin perforata spre strada (public) si spre spatele casei mai vitrata (privatul). Fatada stradala contine spatiile de trecere, accesul vertical si baile iar spatiile de locuit sunt continute de fatada privata.
Odata cu aparitia primului mobilier si a culorilor decorative se poate observa cu usurinta tema cromatica a intregii case, aceasta fiind o paleta de culorii calde si contrastante.
Casa a fost conceputa pentru o familie compusa din sot, sotie si un copil , cu o cerinta minimalista din punct de vedere volumetric si financiar. A rezultat un derivat al cubului cu laturile de 9 m pe 7 m si inaltime de 7 m pe doua nivele. Aditionat este un garaj exterior de 4 m pe 7m cu posibilitatea de convertire in atelier. Parterul prezinta o volumetrie deschisa, atat in interior (lipsa compartimentarii) cat si spre exterior (existenta unui perete de sticla spre gradina). La etaj sunt grupate spatiile de noapte cat si un mic birou in legatura cu dormitorul parintilor.
Arhitect: Mihai Mircea Tudose
Locatie: Str.Traian Vuia 1B, Timisoara
Anul proiectarii : 07.2010
Suprafata desfasurata : 140 mp
Buget: 75000 euro
Fotograf: Mihai Mircea Tudose
- Sursa: www.bnab.ro
- arhipură | pur si simplu arhitectură …





























foarte frumos proiectul
Intr-adevar este unul foarte reusit
Ce casa superba, chiar imi place, un proiect foarte bine realizat
Sigur e doar 75.000€ bugetul ? Pare putin 440€/mp..
Salut,
Se pare ca am tastat gresit, nu e vorba de o suprafata de 170mp ci de 140mp.
Oricum nu e o regula batuta in cuie sa imparti bugetul la suprafata construita…
super proiect….daca as vrea sa-mi constuiesc o casa asa ,cam cat m-ar costa?
Accesati linkul cu numele arhitectului si veti fi directionata pe site-ul acestuia.Acolo veti gasi date de contact si puteti afla detaliile ce va intereseaza.
O zi buna!
intr-adevar foarte frumoasa… Imi puteti spune ce fel de lemn s-a folosit la placarea fatadei? si cine l-a montat? caut o solutie pentru casa mea, am o fatada care trebuie acoperita cu lemn, multumesc! Dan Popa, Bucuresti