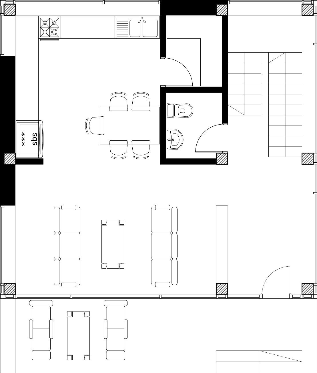
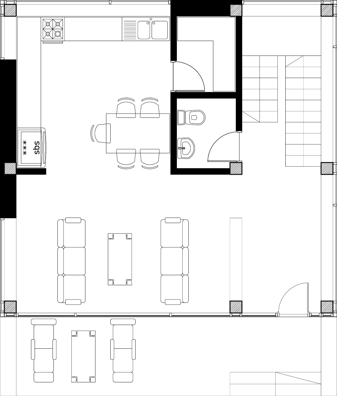
Cea mai mica si mai economica din portofoliul CUB architecture, casa se desfasoara pe o amprenta doar de 65 mp. Este gandita pentru o familie tinara, cu un copil si cuprinde doar strictul necesar pentru locuire.
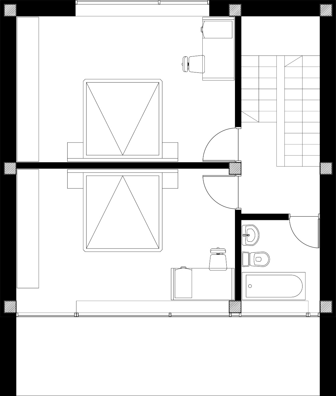
Spatiile din parter s-au gandit cat mai deschise, asa incat sa existe senzatia de spatiu, iar la etaj sunt cele doua dormitoare cu grupul sanitar si dressing-urile incorporate in piese de mobilier in camere.
Imobilul s-a dorit cat mai economic, atat din punct de vedere al investitiei, cat si din punct de vedere al costurilor de exploatare in timp. Insa, s-a dorit ca zona care se deschide catre lac sa beneficieze de priveliste si de insorire in prima parte a zilei.
Fatada principala este gandita cu goluri mari, in timp ce pentru restul fatadelor s-a optat doar pentru goluri minimale, asigurand eficienta termica ridicata si minimizand pierderile de caldura.
Arhitect: Gabriel Raicu | CUB Architecture
Locatie: preurban (Techirghiol)
Suprafata construita: 130 mp + terase
Dispunere nivele: P+1 etaj
Structura: cadre beton armat
Randari: Gabriel Raicu | CUB Architecture
- Sursa: Gabriel Raicu | CUB Architecture / www.cubarhitect.ro
- arhipură – pur si simplu arhitectură …












Spuneti-mi, va rog, care ar fi costul unei astfel de case? Multumesc>
Buna,
Va recomand sa luati legatura cu arhitectul acestui proiect.
Gasiti aici : http://www.cubarhitect.ro/contact datele de contact, si de aici puteti obtine informatii despre proiect http://www.cubarhitect.ro/proiecte/case-mici/nmt-techirghiol-constanta-ID126