Cladirea propusa este situata in satul de Jirny Nou. Terenul este plat, are o forma trapezoidala cu lungimea de 50m si latimea de 10m respectiv 16m.
In prezent, pe teren se afla o livada de pomi fructiferi maturi si doua constructii mici temporare. Casa a fost pozitionata in mijlocul gradinii, astfel incat ofera o distanta suficienta fata de cladirile existente pe terenul vecin. In fata a cladirii sunt propuse doua spatii de parcare si un magazin de gradina, care acoperă partial vederea casei dinspre strada, oferind un grad de intimitate. Intrarea şi sosire pe teren se face din partea de sud.
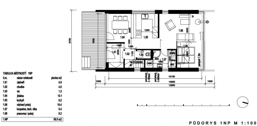
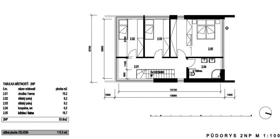
Cladirea propusa este cu etaj, cu un acoperis ce are o inclinatie de 10 °, orientat spre est . Imaginea casei este una compacta, usor alungita – preluang forma alungita a terenului.La parter se afla un living, bucataria cu loc de luat masa, un dormit in continuarea living-ului, spatiul tehnic si un grup sanitar. La etaj avem un dormitor cu dressing, 2 dormitoare pentru copii si o baie.
Exteriorul domina prin cele 2 fatade fronton placate cu lemn si coaja ce imbraca casa pe celelalte directii, dar in acelasi timp placajul de lemn simte nevoia sa se extinda de pe fatade spre coaja.
Daca stam sa ne uitam mai atent, se poate observa ca este o casa destul de mica, simpla si functionala din toate punctele de vedere, cu un exterior nu foarte „urat”. Daca in 10-20 de ani ar incepe sa se schimbe casele de la noi cu ceva de genu, eu as fi foarte multumit de cum v-or arata orasele si suburbiile noastre. Ar fi posibil lucrul acesta ? …
Arhitect: Prodesi | Domesi – Vaclav Zahradnicek
Locatie: Jirny / Cehia
Suprafata construita: 113 mp
Anul proiectului: 2010
- Sursa: Prodesi | Domesi
- arhipură – pur si simplu arhitectură …











2 gânduri despre &8222;Casa simpla, mica si moderna / proiect casa 17&8221;