Proiectul casei este realizat pentru o familie cu 2 copii, la marginea micului sat Bohumileč din regiunea Pardubice .Volumul casei a fost inspirat de designul caselor rustice cu un acoperis in 2 ape ,din zona. Clădirea „se doreşte a fi” discretă, dar un „rezident” expresiv al locului.
Orientarea pe sud a clădirii, împreună cu direcţia est-vest a privelistii spre zona rurală defineşte axa pe care se bazeaza planul ales al casei.Axa est-vest împarte casa în zona de zi aflata spre sud şi aripa de servicii pozitionata spre nord. Lotul este inconjurat de o bariera de copaci maturi.
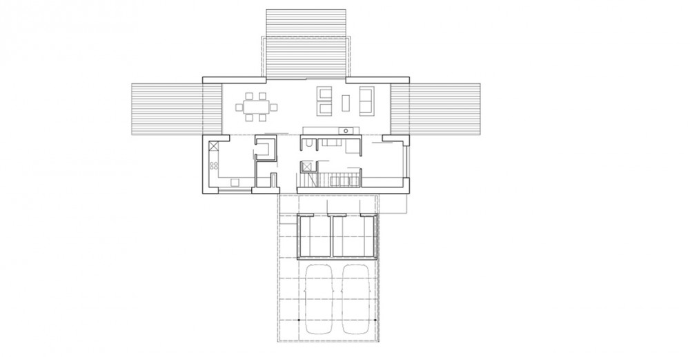
Parterul implică un spaţiu de zi ce intra in legatura directa cu sala de mese.Bucătărie şi depozitarile aferente sunt spre nord.
Camerele cu o orientare sud si vedere la peisajul rural, sunt toate situate la etaj, impreuna cu baia si toaleta, în partea de nord.
Arhitect: mimosa architekti
Location: Bohumilec, Cehia
Anul proiectarii: 2010
Fotograf: Lucie Mlynarova
- Sursa: mimosa architekti / www.archdaily.com
- arhipură – pur si simplu arhitectură …












