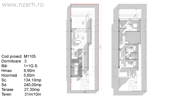
Constructia, o varianta de casa moderna cu deschideri mari si vitraje pe doua laturi ale volumului, este o solutie avantajoasa pentru terenurile inguste si lungi. Cladirea asemenea unei palnii face legatura dintre zona curtii dinspre drumul de acces si spatiul privat al curtii din spate.
Ca functiune casa raspunde necesitatilor unei familii de 4 persoane. Spatiile interioare sunt fluid continuu scaldate in lumina zenitala prin fante orizontale si verticale, prin geamurile din acoperis si deschiderile mari vitrate ale celor doua laturi . Terasele generoase scobite parca din interiorul volumului dau senzatia de sporire a spatiului si de prelungire a casei.
Arhitect: Vasile Zastavnitchi / NZarh
Locatie: Sector 5, Bucuresti
Suprafata teren : 250 mp
Suprafata construita : parter=134 mp / etaj=106 mp
Randari : Vasile Zastavnitchi / NZarh
- Sursa: Vasile Zastavnitchi / www.nzarh.ro
- arhipură – pur si simplu arhitectură …













Superb