Locuinta este gandita pentru o familie tanara, care doreste sa se incadreze ca estetica, intr-o abordare moderna, contemporana. Locatia este in apropierea litoralului, drept pentru care s-a optat pentru o abordare mediteraneana, simpla si de efect.
Placarile cu lemn sunt gandite astfel incat sa dea o atmosfera calda, in contrast cu albul fatadei, si cu cerul senin specific locatiei.
Terasa principala de la parter este deschisa pe doua laturi catre curte si separata de casa prin vitraje ample, asa incat, chiar de la interior sa dea senzatia unui spatiu amplu. Pentru ca deschiderea casei este catre latura de acces cu strada, s-a optat pentru o confectie metalica pe care sa creasca vegetatie si permite celor de pe terasa sa se bucure de aer, fiind feriti in acelasi timp de privirile trecatorilor.
Ideea confectiei metalice este reluata si pe fatada, intr-un parasolar, cu un design aparte, asa incat umbrele care se profileaza la interior sa dea ele insele un desen pe pardoseala si pereti.
Arhitect: Gabriel Raicu | CUB Architecture
Locatie: preurban Valu lui Traian, Constanta
Anul proiectarii : 2012
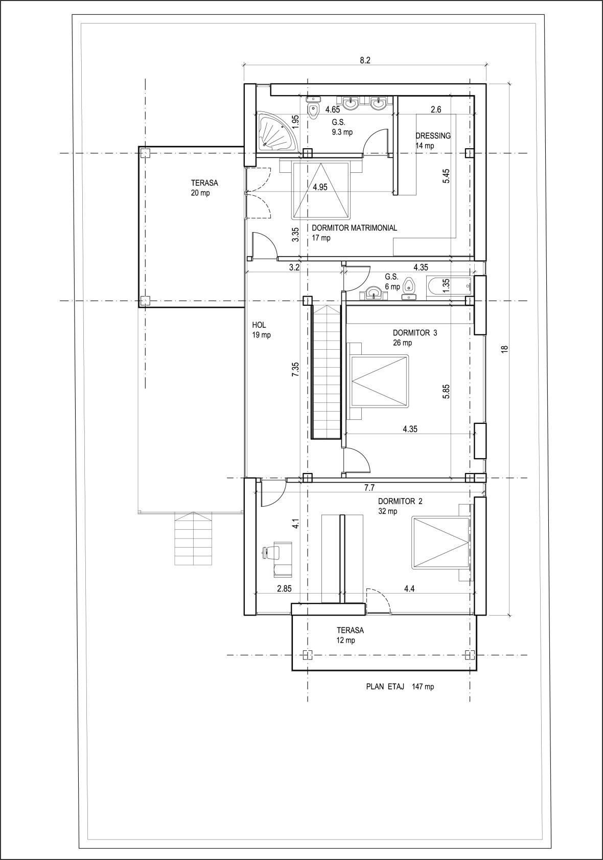
Suprafata desfasurata : 285 mp
Fotograf: Gabriel Raicu
- Sursa: www.cubarhitect.ro
- arhipură | pur si simplu arhitectură …



















superb proiect, toate proiectele postate sunt frumoase, imi plac foarte mult.