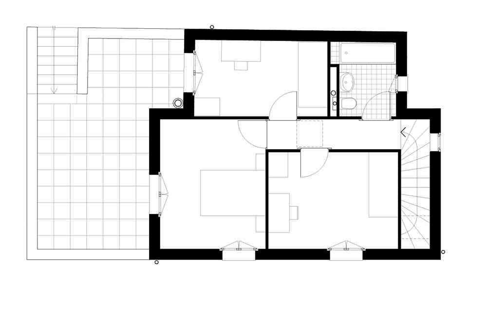
Proiectul prezentat aduce la viata spatiile unei cladiri existente ,dar si pune partea exterioara in valoare printr-o noua abordare. O aditie la nivelul parterului oferta un surplus de spatiu camerei de zi si bucatariei,dar devine si terasa pentru dormitoarele de la etaj.
Intreaga cladire trece printr-o schimbare.Se renunta la streasina veche pentru a oferi constructiei o imagine continua si monolita. Paleta de culori a acoperisului si fatadelor este minimizata pentru a intari forma unitara a intregului. Deschiderile existente se pastreaza, dar pozitia lor este pusa in miscare cu ajutorul unor cadre albe asimetrice.
Tratamentul aplicat asupra imaginii exterioare a casei ofera un joc natural si o liniste instabila in contrast cu mediul de locuinţe.
Mie personal, imi place cum a prealuat ideea cadrelor albe din jurul ferestrelor de la imaginea veche a casei cu obloane. Ii da un efect simplu, dar de senzatie.
Arhitect: DLV architectes & associés
Locatie: Geneva, Elvetia
Suprafata proiect: 120 mp
Anul proiectului : 2006 – 2007
Fotograf : Juan Madrinan / DLV architectes & associés
- Sursa: DLV architectes & associés / www.archdaily.com
- arhipură – pur si simplu arhitectură …




















o revitalizare/extindere reusita dar cred ca era mai simplu si mai economic sa faca alta noua daca regulile zonei ii permiteau.
Pai la ce nivel de interventia a supus vechea cladire, sigur era mai eficient sa faca de la zero una noua. cine stie ce reguli or fi in zona sau ce valoare sentimentala o fi avut casa pentru beneficiar:)
Din ce stiu eu, o interventie de genul acesta, asupra unei cladiri vechi e mai costisitoare decat una noua.