Terenul se afla la iesirea din satul Opava si are o forma lunguiata de 13.5m pe 100m. In partea din fata este propusa casa iar pe restul terenului se va extinde livada de pomi fructiferi existenta.
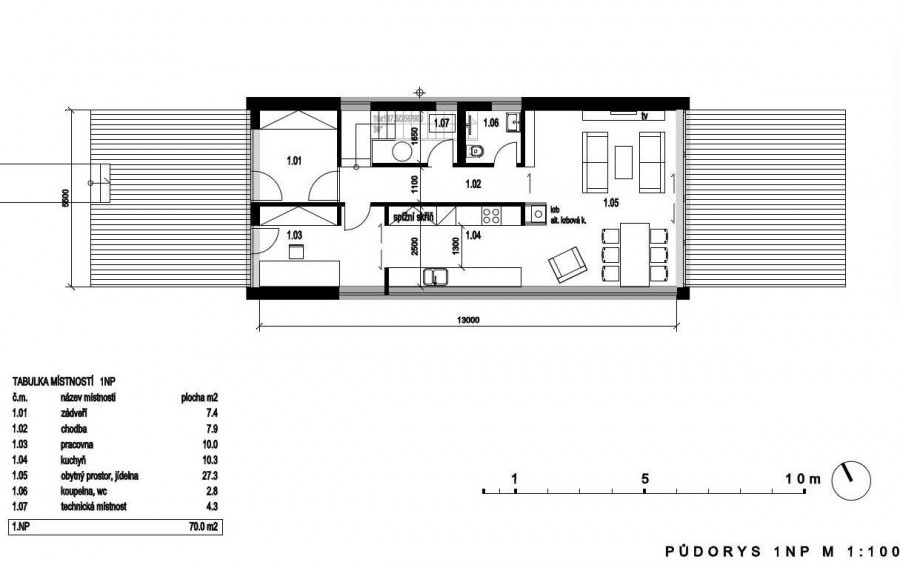
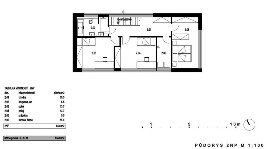
Cladirea propusa este parter + etaj , cu un acoperis in 2 ape, inclinatie de 25 ° ,amplasat pe directia longitudinala. Forma lunguiata a cladiri este accentuata de 2 terase una pe directia vest ,cealalta pe est. La parter avem camera de zi, bucataria cu loc de luat masa, un birou,spatiu tehnic si un grup sanitar. Al doilea etaj este format din 3 dormitoare, spalatorie si o baie comuna.
La exterior cele doua fatade fronton sunt tratete simplu cu placaj vertical din lemn si zone vitrate mari. Fatadele de pe nord si sud devin o coaja, care impreuna cu acoperisul imbraca casa.
Casele prezentate ieri si astazi sunt realizate pe o structura din lemn, rezultand o forma lunguiata in plan cu latura scurta de maxim 6 metri, adica o deschidere ce trebuie sa fie preluata de grinzile din lemn. Mie imi place, mica dar iti ofera tot ce ai nevoie de la o locuinta.
La noi inca domina ideea ca o casa trebuie sa reziste pentru mai multe generatii, de unde rezulta ca trebuie sa fie realizata din caramida, dar si o casa din lemn poate fi la fel de trainica, poate chiar mai ieftina. Ramane sa vedem ce ne rezerva viitorul sau sa facem noi ceva si sa-l luam prin surprindere.
Arhitect: Prodesi | Domesi – Pavel Horak
Locatie: Opava / Cehia
Suprafata construita: 134 mp
Anul proiectului: 2010
- Sursa: Prodesi | Domesi
- arhipură – pur si simplu arhitectură …









2 gânduri despre &8222;O casa din lemn / proiect casa 18&8221;