Casa a fost conceputa pentru o tanara familie ce isi dorea o noua casa intr-0 zona cu multa verdeata din apropierea orasului Zagreb.Cerinta principala a fost nevoia de intimitate a beneficiarilor, zona de zi a casei sa fie ascunsa de privirile vecinilor, sa fie orientata spre sud si sa se deschida spre curte. Prin folosirea caramizii la placarea fatadelor casa se integreaza foarte bine in mediul construit din jur.
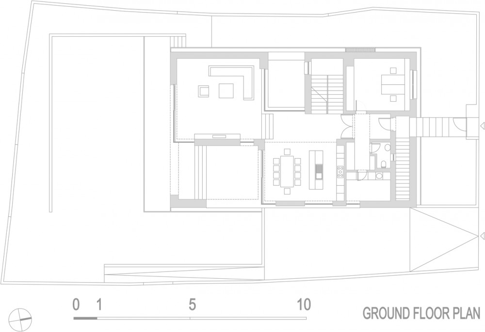
Casa are un regim de S+P+1E, avand zona de dormit la etaj. Cele mai multe dintre activitatile familiei au loc la parter, ce se deschide spre zonele verzi ale curtii.Fatada nordica are goluri foarte mici fiind inchisa spre strada, in timp ce celelalte 3 fatade sunt dominate de goluri mari.
Zona parterului se bucura si de o curte de lumina ce ofera un spatiu plin de intimitate ferit de privirile vecinilor.
Arhitect: Tomislav Ćurković, Zoran Zidarić / Dva Arhitekta
Locatie: Zagreb, Croatia
Client: Damir Sabol
Colaborator: Maja Markus
Anul proiectului : 2010
Fotograf : Robert Leš
- Sursa: Dva Arhitekta / www.archdaily.com
- arhipură – pur si simplu arhitectură …
























