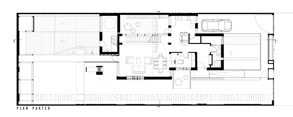
Proiectul conformeaza spatial doua probleme „fizice”, limita din dreapta parcelei spre care imobilul s-a „incapatanat” sa nu se exprime prin calcan si in acelasi timp cornisa sa devina reprezentativa pentru concept – fly house, ca expresie a unui alt mod de abordare.
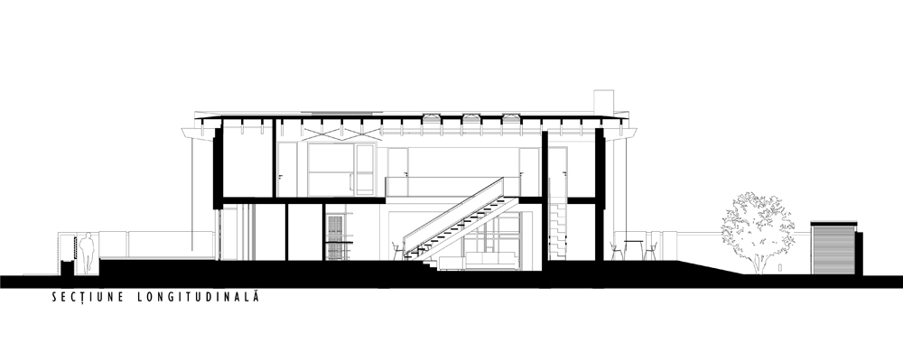
Experimentul (pana la urma si financiar prin finisajele montate direct in stadiul incipient) era stabilit. Trebuia lucrat la detalii in asa fel încat sa se exprime tectonica si in acelasi timp sa fie definita o tema pe care arhitectura romaneasca actuala o trateaza cu indiferenta – relatia casei cu cerul.
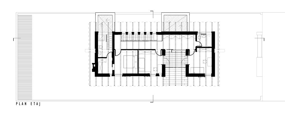
Raportul sus-jos este exprimat dublu, printr-o scara care celebreaza spatiul principal si printr-o alta scara ascunsa, „mai mult decît privata” – in baia matrimoniala.
Ca orice casa care se respecta nu si-a neglijat nici relatia cu solul, acomodand curti/gradina la nivel macro (curtea mare), mediu (curtea de vara spre nord – in relatie cu bucataria) si micro (gradina din fata biroului ce articuleaza si intrarea)
Arhitect : Marius Miclaus – Archaeus Studio
Coautori: Beatrice Lucaci, Zsolt Várday
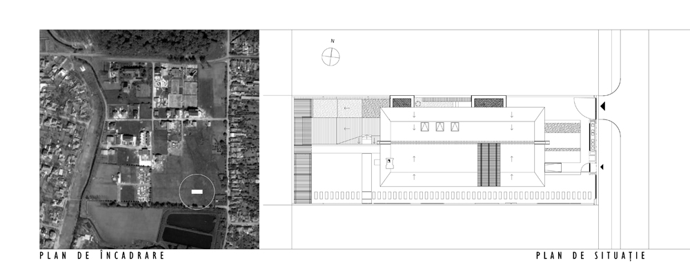
Locatie : Ghiroda, Timisoara
Constructie: 2007
Suprafata: 220 mp
- Sursa: A_TA 2007 / Archaeus Studio
- arhipură – pur si simplu arhitectură …


















