Poate fi parterul la etaj? Sigur, trecand peste exprimarea precedenta, cu iz hilar, dintr-un anumit punct de vedere, da, se poate!
Spunem asta, pentru ca in memoria colectiva, zona de parter este destinata spatiilor de zi, iar etajul este pentru dormit. Dar, atunci cand privelistea spre care se deschide casa, in cazul acesta, catre faleza Dunarii, inversarea topicii celor 2 nivele este mult mai interesanta. Astfel, zona de zi este situata la etajul 1 si este sustinuta de vitraje largi, catre Dunare, dar si catre oras, oferind o perspectiva interesanta atat la intrarea cat si la iesirea din locuinta. Etajul este gandit in sistem open-space, si, mai mult de atat, este sustinuta de o zona suprainaltata vitrata perimetral, asa incat acoperisul pare ca pluteste pe zona respectiva.
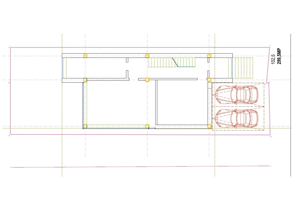
Parterul este alcatuit din zona de acces in imobil, dormitorul matrimonial cu baie proprie si dressing incorporat, si alte 2 dormitoare pentru copii cu o baie cu acces din hol. La demisol sunt 2 camere cu destinatia de studio de inregistrari, beneficiarul fiind pasionat de acest domeniu.
Arhitect: Gabriel Raicu | CUB Architecture
Locatie: Faleza Dunarii, Galati
Anul proiectarii : 2013
Suprafata desfasurata : 299 mp
Fotograf/Randari : Gabriel Raicu | CUB Architecture
- Sursa: www.cubarhitect.ro
- arhipura | pur si simplu arhitectură …



















Ce structura interesanta, cred ca mi am gasit idealul meu de casa. Este superba
indraznesc sa va intreb -ce deschidere la strada are ?
Am un teren cu latime de doar7ml.va rog sa-mi spuneti daca s-ar putea preta un asa frumos proiect?
Aveti datele arhitectului la sfarsitul articolului, luati legatura cu dansul si sunt mult mai sigur ca o sa primiti toate informatiile de care aveti nevoie.
Hello, I really like this house project and I’m interested in buying a project with all dimensions.