Situata in vecinatatea imediata a orasului, la intrarea in comuna Dumbravita, intr-o zona nou urbanizata, casa ofera confortul unei familii cu trei membri.
Beneficiarii au avut de la inceput deschiderea pentru o solutie de tip „cutie”, cu acoperis terasa circulabila, iar studierea impreuna a unor imobile asemanatoare a intarit convingerea solutiei alese. Pentru colaborarea ulterioara, problema consta in intelegerea identitatii clientului si a locului, in vederea inventarii identitatii casei.
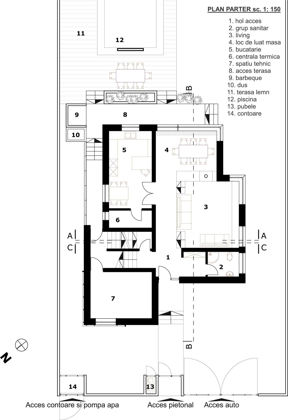
In conditiile mutarii de la un apartament obisnuit la casa, aceasta trebuia sa aibe un confort sporit, insa totusi o suprafata retinuta. Atenti la costuri si implicit la suprafata construita, am renuntat la spatiul conventional inchis, alocat autovehiculelor, modeland astfel „cutia” incat sa nu renuntam la protejarea accesului principal (si) de la masina in casa. Incercand sa tinem suprafetele sub control, am creat spatii deschise, fluide, in care zonele de circulatie si cele deservite se intrepatrund.
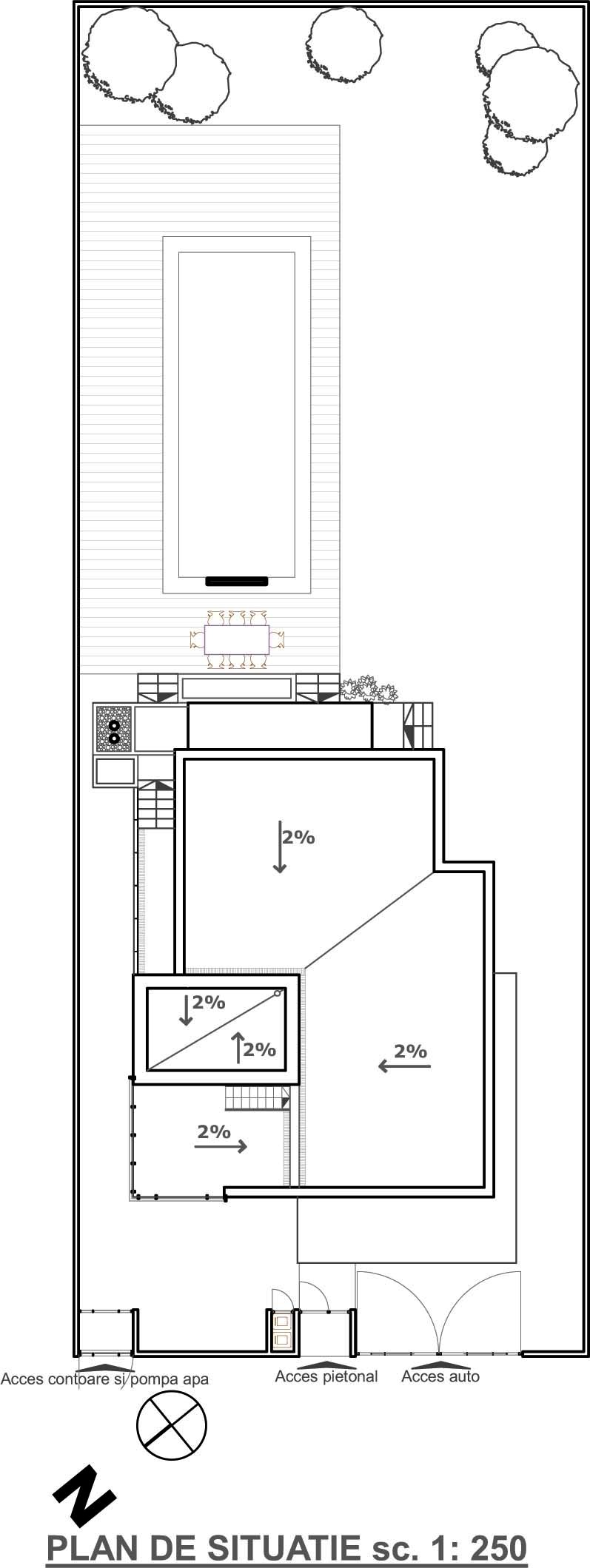
Dispunerea axei longitudinale a terenului pe directia NE-SV a generat distributia zonelor in casa. Terenul avea avantajul amplasarii curtii spre sud, prin urmare am deschis casa spre curte prin vitraje ample, spre o zona privata si am inchis-o discret spre nord, spre spatiul public – strada.
Odata cu rezolvarea accesului protejat in casa am creat identitatea casei prin acest element de tip consola de la nivelul superior – volum decupat la nivelul parterului sau al terasei intermediare, ce se regaseste interpretat si la nivelul celorlalte fatade.
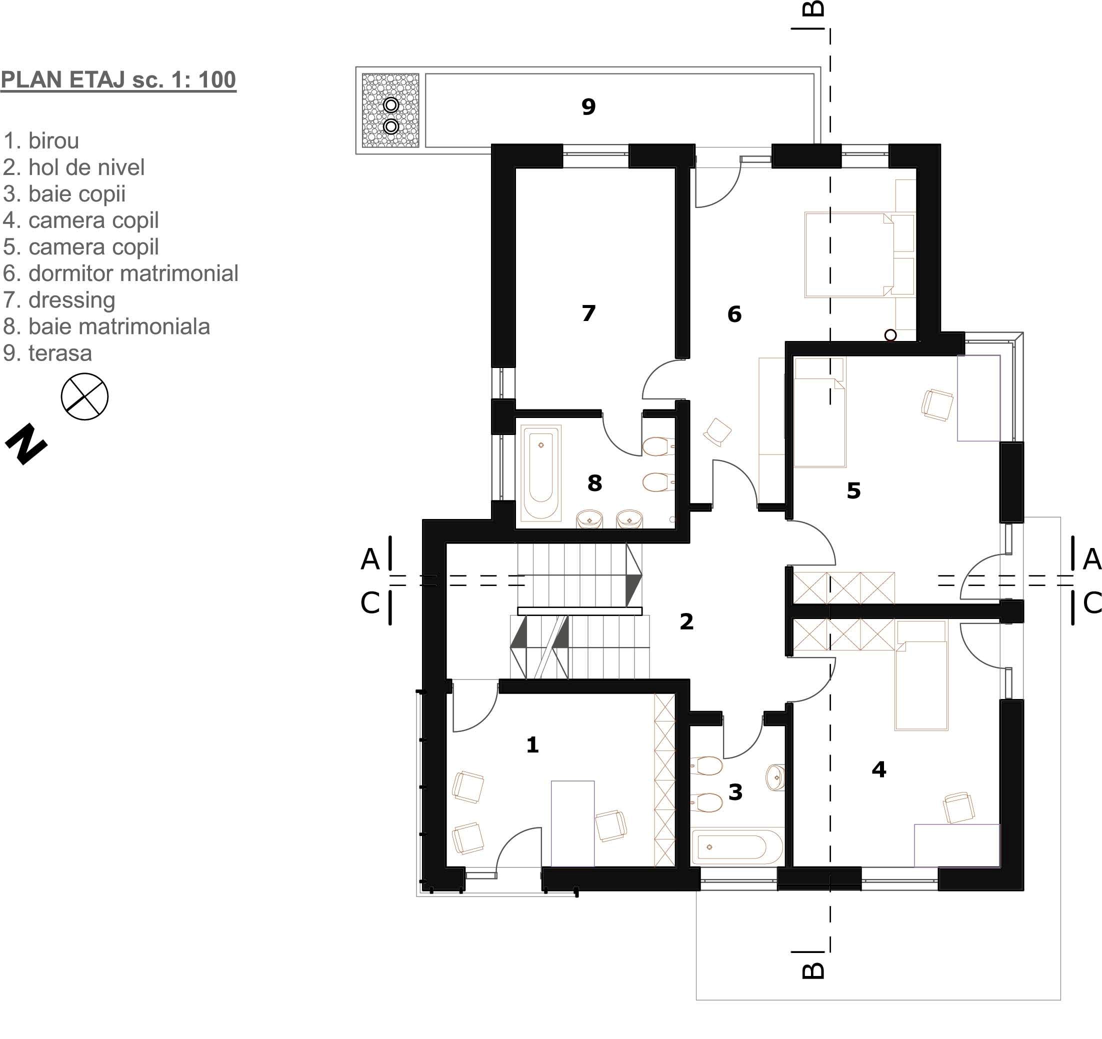
In incercarea de a reduce cat mai mult zona de circulatii spre etaj, am decalat nivelurile astfel incat am introdus la jumatate de nivel un demisol tehnic, un birou deasupra acestuia si o terasa intermediara la nivelul superior – „cuib”, in proximitatea zonei copiilor pentru a le crea o zona de joaca comuna, retrasa de restul casei.
Arhitect: Ciprian Nicolae Racasan
Locatie: Dumbravita, Timisoara
Suprafata proiect: 284 mp
Finalizare: 2011
Fotograf: Ciprian Nicolae Racasan
- Sursa: a_ta 2011 / www.arhgora.ro
- arhipură – pur si simplu arhitectură …




















