Westcliff Pavilion, din Johannesburg, Africa de Sud, proiectata de designerii de la GASS Architecture Studios este mai mult decat o casa, este o adevarata opera de arta arhitectonica cu structura de otel si sticla.
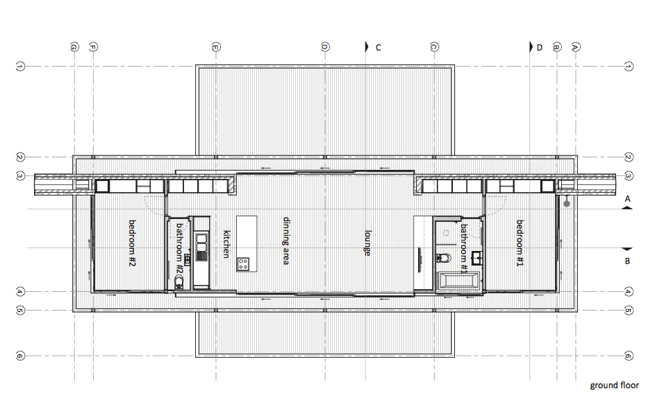
Compus din doua dormitoare, doua bai, o bucatarie, un dining si un living (lounge), acest proiect inedit este castigatorul premiului 2012 Steel Award, la categoria arhitecturii pe cadre de otel, oferit de Institutul Constructiilor de Otel din Africa de Sud (SAISC).
Construita pe marginea unei stanci, spectaculoasa casa pastreaza traditia arhitecturii locale, care presupune folosirea pietrei naturale in decorarea exterioara a locuintelor, mai ales ca aceasta provine chiar din carierele de piatra de pe continentul african. Arhitectii proiectanti spun ca au folosit in placarea fatadelor piatra extrasa chiar din pamantul pe care a fost construita casa.
Motive ce au contribuit la alegerea structurii de otel si sticla pentru aceasta constructie:
Solicitarea expresa a clientilor (proprietarii casei), care si-au exprimat dorinta de a obtura cat mai putin privelistea din jurul proprietatii. Asadar, solutia cadrului metalic si a peretilor exteriori din sticla s-a dovedit a fi cea mai potrivita.
Dorinta echipei de arhitecti de a vatama cat mai putin ecosistemul in care urma sa se desfasoare santierul de lucru, cu impact minim asupra mediului inconjurator. Prin urmare, structura de otel a permis ridicarea casei deasupra nivelului solului, pe piloni metalici ingropati in stanca – solutie foarte putin invaziva, comparativ cu saparea unei fundatii traditionale.
Impactul vizual al constructiei – stalpii din otel in asociere cu terasa exterioara, placata cu lemn masiv, ofera casei un aspect deosebit de elegant, incadrandu-se perfect in peisajul stancos al zonei.
Arhitect: GASS Architecture Studios
Locatie: Johannesburg, Africa de Sud
Anul proiectarii/executiei : 2011-2012
Suprafata desfasurata : 120 mp
Fotograf : Bernard Viljoen
- Sursa: www.casadex.ro
- arhipura | pur si simplu arhitectură …
[en] __________________________________________________________________________________
The only residential project to receive a commendation at this year’s awards, GASS’s steel-framed pavilion, located on the Westcliff Ridge within a wooded estate with arresting views across the Johannesburg skyline, is truly a masterpiece in steel architecture and construction.
From its hiding place on the edge of the cliff this steel framed pavilion is constructed primarily from I-sections for beams and square hollow tubes for columns.
The Choice to use steel framed construction was threefold.. Firstly, part of the brief from the client,and the obvious requirement due to the magnificent setting of the cottage was the necessity to use as much glass on the view side of the property as possible. This was far easier facilitated by placing the aluminium and steel framed glass windows and doors between structural steel elements, rather than relying on more bulky, heavier elements such as masonry and concrete.
Second, from an environmental perspective, architects Georg van Gass and Clare Eisenstein wanted to treat the ecosystem of the Westcliff Ridge very lightly, with low impact on its surrounding. The goal was to allow the building to float above the ground plane, leaving as much of the ridge intact as possible; the only disruption to the ground being the footings of the main structural steel columns. The third reason that a steel frame structure was chosen was a visual one. Simply put, Georg van Gass and Clare Eisenstein wanted an elegant, timeless aesthetic that would allow the use of steel elements not only as primary structural elements, but also as the principal architectural motif. This also allowed the incorporation of sprung solid timber floors that blended seamlessly with the exterior solid decking, while still retaining the straight, elegant steel edge detail.
One of the main identifying features that make this work more than simply a modernist box is the floating stone wall. Many of the houses on the Westcliff Ridge and surrounds are famous for their use of native stonework in their detailing, including works by architectural greats like Sir Herbert Baker. Georg was keen to continue in this tradition of using indigenous stone in the design, and so the as such, wanted to include a wall made from stone harvested on the site itself. However, he wanted to give this wall a twist, something that would differentiate it from all other walls in Westcliff.
Georg and Clare chose to turn the understanding of a solid wall on its head, to theoretically re-conceive what a wall actually is. They chose to get rid of this concept of sturdiness and solidity that is inherent in the understanding of a wall, and do the exact opposite: create something that does not rely on the ground at all for its solidity. So they created a floating wall, “With some creative engineering, we were able to suspend the floating wall off of the already lofted steel framed structure. Thus creating a floating wall on a floating building”, says Georg.
Architect: GASS Architecture Studios
Location: Johannesburg, South Africa
Year: 2011-2012
Area : 120 mp
Photographs: Bernard Viljoen
- Source: www.archdaily.com
- arhipura | pure and simple architecture …













