Casa B8 este situata la 270 km nord de Santiago, in localitatea Huentelauquen, intr-o zona caracterizata de vanturi puternice ce bat de-a lungul coastei Pacificului. Este proiectata de echipa de arhitecti 56.02 (Mauricio Bruna-Fruns, Ursula Oliva, Alejandro Gandarillas, Pablo Muñoz)
Schema initiala a fost o casa de aproximativ 50 mp, cu un plan parter flexibil, capabil sa se reconfigureze la utilizari si conditionari diferite. Acestea au fost premisele ce au stat la baza proiectarii:
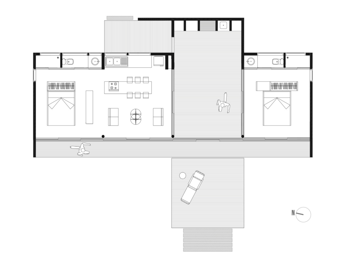
Toate zonele „umede” sunt condensate intr-un perete / volum care trece prin intreaga fatada de sud, aceasta decizie contribuind la crearea unor spatii mai flexibile.
Unul dintre obiectivele principale a fost de a extinde zona construita, fara a creste bugetul initial al casei, tinand cont de diversele activitati si situatii caracteristice stilului de viata al proprietarului. Pentru a realiza acest lucru, a fost propusa o curte interioara articulata, cu aceleasi dimensiuni ale modulului standard care este folosit la intrarea casei. Aceasta operatiune a permis formarea unui spatiu deschis in aer liber, protejat de vant, si de asemenea, o terasa, cu aceeasi orientare ca spatiul mentionat in aer liber, spre exterior. Compilarea tuturor solutiilor transforma o casa de 50mp intr-una de 91mp.
Impartirea diferitele spatii , iar materialele selectate pentru inchideri au fost panourile glisante din sticla. Aceste elemente au posibilitatea de a se deplasa, generand o limita de interior-exterior, care poate fi controlata dupa dorinta utilizatorului.
Arhitect: 56.02 (Mauricio Bruna-Fruns, Ursula Oliva, Alejandro Gandarillas, Pablo Muñoz)
Locatie: Huentelauquen, Chile
Anul proiectarii/executiei: 2010
Suprafata desfasurata: 50 mp
Fotograf: Alejandro Gandarillas


















