Casa LOG1 | proiect casa 23

Arhitectii de la Arhi DOT Design  propun  o locuinta care sa corespunda tuturor necesitatilor de confort si functionalitate, pe langa cele estetice, dar totul restrans pe un teren de dimensiuni foarte reduse si cu o mare atentie la bugetul necesar edificarii si intretinerii ulterioare.

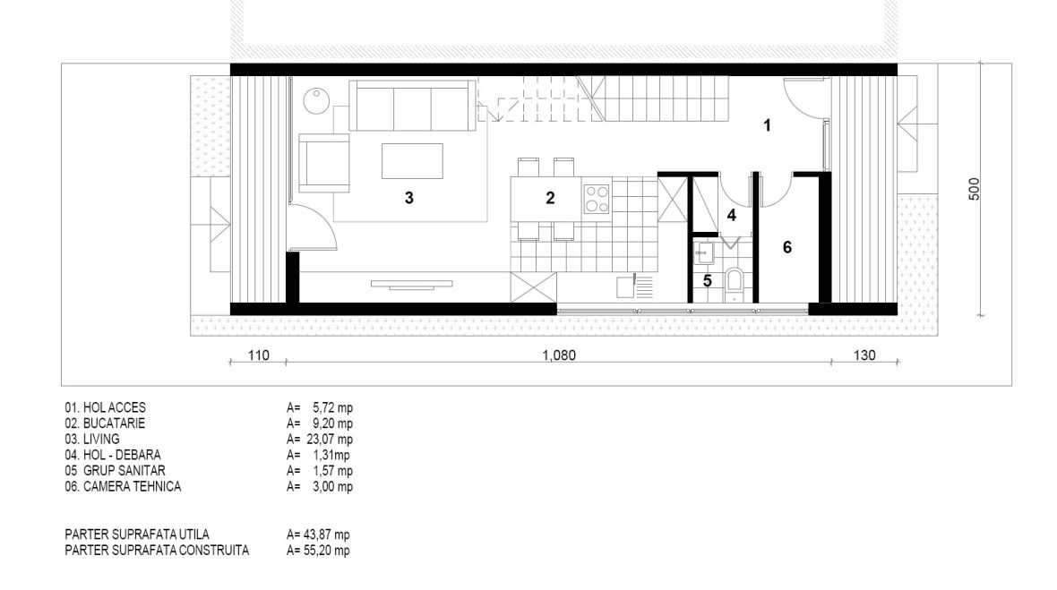
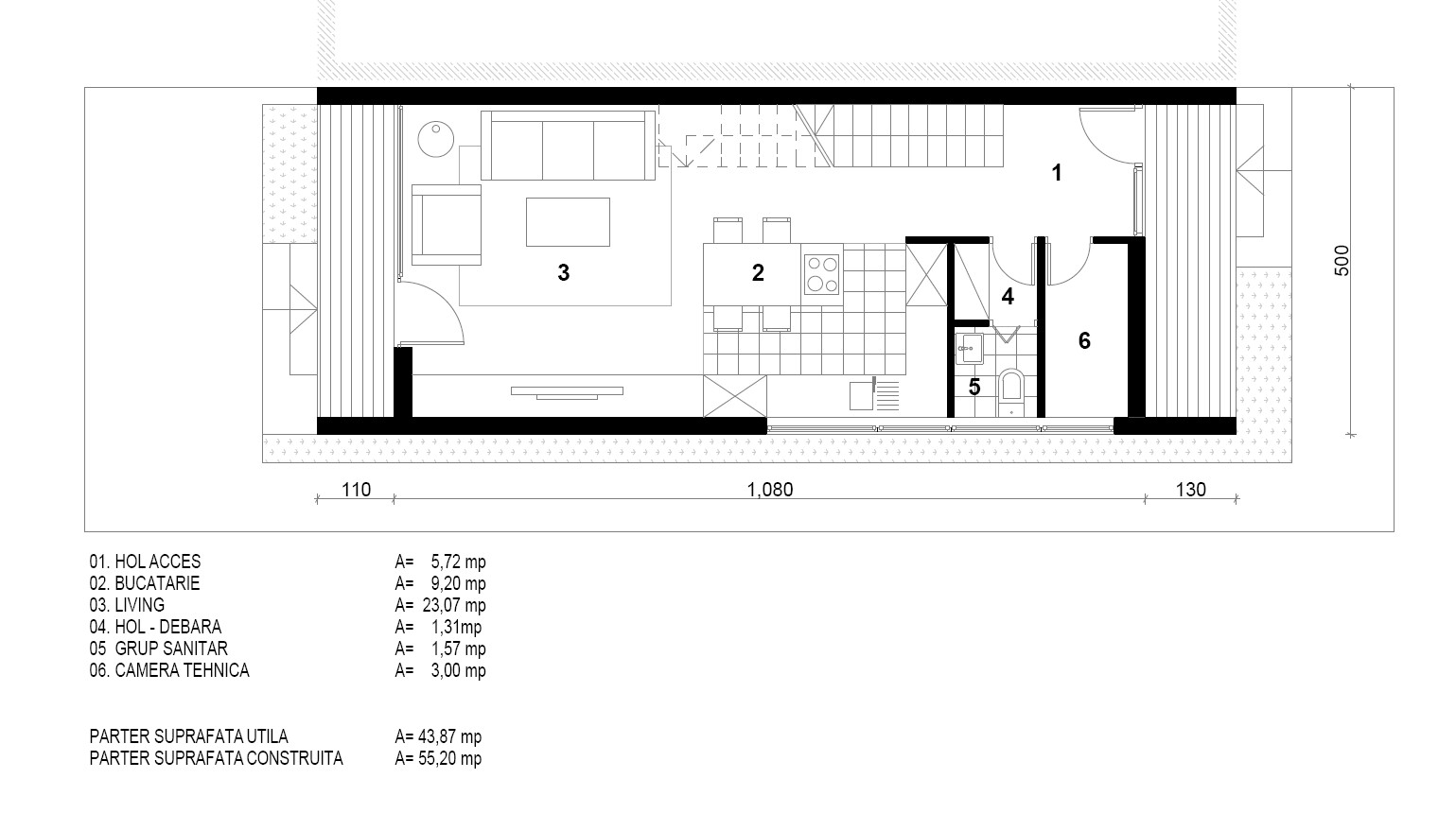
Se propune o locuinta cu doua niveluri care are o latime maxima de 5 m. La parter se gaseste zona de zi, cuprinzand vestibul , living, bucatarie, o camera tehnica, un grup sanitar si o mica depozitare, iar la etaj se regasesc doua dormitoare, o baie si o debara foarte incapatoare. Arhitectii s-au concentrate pe o rezolvare eficienta  a instalatiilor, cu trasee cat mai scurte. Baia din etaj se suprapune peste grupul sanitar din parter, care la randul sau este intre bucatarie si spatiul tehnic. In plus, spatiile vor putea beneficia de o buna ventilatie naturala datorita conformatiei planului. Structura simpla, cu etaj mansardat reprezinta un alt avantaj care se va reflecta in costul de construire .

Aspectul exterior al casei se inscrie in cele mai noi tendinte ale arhitecturii contemporane.  Acelasi material ( tabla sau lemn) va imbraca fatadele laterale si invelitoarea , ca intr-o coaja, laturile inguste ale constructiei primind un finisaj neutru, o tencuiala alba cu accente de culoare .

Pentru zona de zi s-a asigurat o suprafata cat mai mare de vitraj, iar pentru toate celelalte incaperi, golurile au fost restranse la un minim necesar, pentru a reduce bugetul alocat acestora. Pentru a putea beneficia de lumina si ventilatie naturala, deasupra scarii s-au prevazut ferestre de tip Velux.

Arhitect:  Arhi DOT Design
Acoperis : Sarpanta
Structura : Beton armat + Lemn
Anul proiectarii :2012
Suprafata utila : 89 mp
Suprafata totala construita : 110 mp
Teren necesar : 155 mp

2 gânduri despre &8222;Casa LOG1 | proiect casa 23&8221;

Lasă un comentariu

Acest site folosește Akismet pentru a reduce spamul. Află cum sunt procesate datele comentariilor tale.