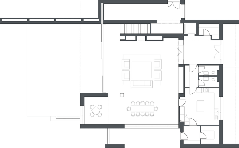
Amplasamentul privilegiat ( pe malul lacului Snagov ), a dictat o serie de date de tema si, implicit, solutia adoptata. S-a optat pentru realizarea unei cladiri de tip „fata si spate”, cu majoritatea camerelor orientate catre lac, fapt care face ca cladirea sa fie mult mai spectaculoasa vazuta dinspre lac.
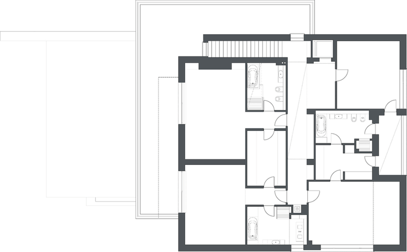
Spatiile sunt foarte generoase , si se pastreaza o legatura directa cu exteriorul, dandu-le o mai mare amploare. De asemenea, s-a mai dorit realizarea unei anexe pentru angajatii permanenti ai proprietarului, a unui garaj pentru 3 masini si a unui ponton.
Casa cu privelisti impresionante are evidente tente moderniste, solutie potrivita pentru locuinte din motive tehnice si economice, in contextul actual. Simplitatea devine deci o nevoie, abilitatea proiectantului putand insa transforma aceasta situatie intr-un atu prin proportie si armonie.
Arhitect: Radu Canciovici, Dan Voicu, Cristina Canciovici
Locatie: Snagov, Zorelelor, Ilfov
Anul proiectului : 2011-2012
Suprafata desfasurata : –
Fotograf: –
- Sursa: www.bnab.ro
- arhipura | pur si simplu arhitectură …















