Arhitectii au proiectat si expus aceasta resedinta moderna de un alb pur pe un fundal reprezentat de albul pur al zapezii. Acest concept impresionant de la care s-a plecat face referire la faptul ca orasul Reykjavík este considerat a fi prima asezare permanenta in Islanda.
Proiectul casei trebuia sa se incadreze in limitele impuse de Master Planul local, in consecinta, dimensiunile exterioare ale constructiei, inclusiv terasele, sunt de 15,5m x17m, aceasta fiind suprafata maxima obtinuta pentru acest teren.
Casa raspunde la nevoile viitorilor beneficiari, atat din punct de vedere functional cat si estetic. Volumetric este minimalista, suprafete simple albe cu zone vitrate mari spre exterior. Casa respecta peisajul din jur – doua dintre laturi sunt orientate catre privelisti uimitoare, fiind complet vitrate, iar celelalte laturi sunt aproape in intregime pline avand scopul de a asigura intimitatea locuitorilor.
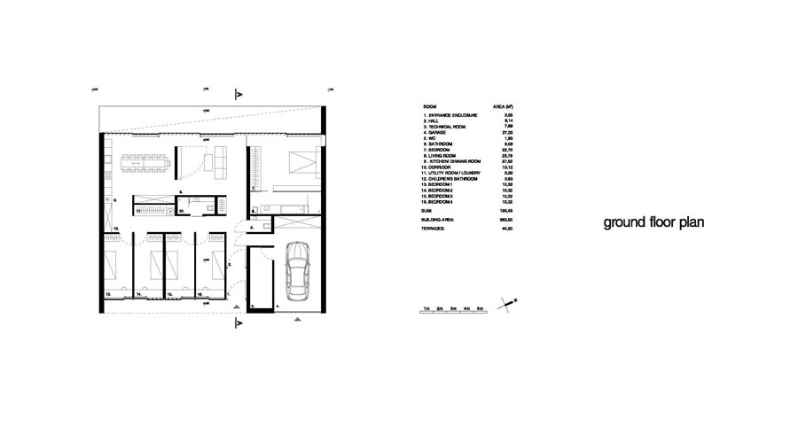
Ideea principala a proiectului a fost ca suprafata terasei sa para ca e in continuarea peisajului. Pentru a intarii aceasta idee cele doua laturi vitrate se pot deschide astfel spatiu exterior intra si comunica cu cel interior. In timp ce exteriorul este simplu alb, la interior pe langa suprafetele albe apare si lemnul, esenta de mesteacan. Planul imparte casa in 4 zone principale – zona garajului, zona dormitorului matrimonial, zona pentru copii si zona livingului.
In zona garajului este spatiu suficient pentru o masina, camera tehnica si toaleta. Usile garajului sunt realizati din acelasi material ca peretii exteriori.
Dormitorul matrimonial are un pat dublu si o garderoba generoasa. Baia este amplasata in spatele peretelui de sticla si este echipata cu o cada, cabina de dus, chiuveta si toaleta; ultimele doua sunt ascunse in spatele garderobei pentru a nu fi vizibile din dormitor. Beneficiarii se pot bucura de vederea uimitoare spre exterior in timp ce se relaxeaza in baie. O fereastra suplimentara in dormitor aduce mai mult lumina si face de asemenea legatura cu peisajul exterior.
In zona copiilor sunt 4 dormitoare single (dotate cu paturi de o persoana, dulap mic si un birou), o baie si o zona de depozitare mascata intr-un perete.
Zona livingului reprezinta sufletul casei aici avand loc majoritatea activitatilor din timpul zilei. Exista, de asemenea, o bucatarie, cu mobilier de 85 cm inaltime pe un perete si un modul pe toata inaltimea. Zona de luat masa este pentru 8 persoane, dar raspunde si la necesitatea de a gazdui pana la 20 de persoane: masa poate sa devina mai mare , iar peretele mobil dintre living si bucatarie ofera o deschidere a spatiului.
Zona livingului este scaldata in lumina naturala datorita zonelor vitrate din pereti , dar si celor doua luminatoare uriase care dau impresia ca acest spatiu este stabilit in peisaj, nu in interiorul casei.
Arhitect: MOOMOO architects
Locatie: Reykjavik, Iceland
Anul constructiei : 2012
Suprafata totala construita : 194 mp
Fotograf: MOOMOO architects
- Sursa: MOOMOO architects / www.morfae.com
- arhipură – pur si simplu arhitectură …















12 gânduri despre &8222;Casa Reykjavik | Moderna si simpla&8221;