Beneficiarii, un cuplu intre varste, au contactat arhitectii avand o singura cerinta : isi doreau sa construiasca o casa fara scari, o casa care va fi la fel de practica si placuta atunci cand vor imbatranii. Terenul nu a oferit indicii evidente, prezenta o suprafata plata intre doua case vecine existente. Este situat intr-o suburbie a orasului Wroclaw, fiind inconjurat de un amestec haotic de case din mai toate stilurile, materiale si conditii financiare.
Prima decizie a constat in plasarea casei de-a lungul muchiei nordice a parcelei, pe langa un culoar ingust de acces, astfel incat volumul casei va proteja gradina generoasa de privirile nedorite si de drumul zgomotos din apropiere.
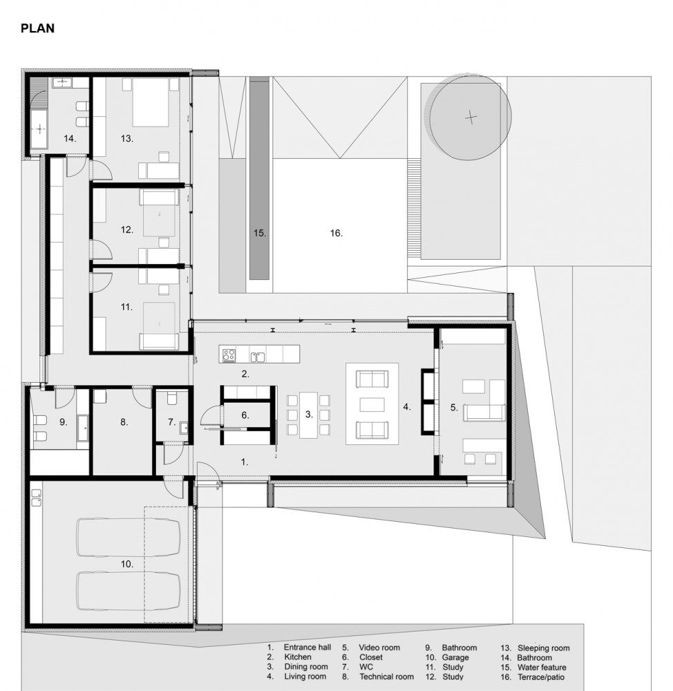
Planul in “T” reflecta clar organizarea spatiilor in cadrul casei. Latura lunga vizibila dinspre strada gazduieste spatiile comune ale casei. Aceasta latura spre exterior este placata in intregime cu sipci de lemn, si inchide livingul spre strada. Numai dupa ce se patrunde in interior printr-o usa din lemn masiv adiacenta volumului ce adaposteste garajul dublu, se poate observa si intelege cealalata fata a casei care este complet deschisa spre gradina. Volumul zonei comune prezinta un plafon inclinat, aducand sentimentul de o mai mare deschidere si spatiu. In spatele peretelui lateral al camerei de zi(zona comuna), conectate printr-un semineu cu doua fete, se afla un “home cinema”, un studio pentru a asculta muzica si viziona filme, fiind dotat cu pereti imbracati acustic si un ecran incorporat.
Bucataria se afla in centrul planului si este un spatiu de tranzitie intre living si volumul in care sunt situate dormitoarele. Cele trei dormitoare se deschid spre terasa si gradina datorita ferestrelor mari glisante, dar pentru a patrunde din exterior in dormitoare trebuie sa treci peste o pelicula de apa – reprezinta un gest, o bariera ce aduce mai multa intimitate acestor spatii. La capetele coridorului se afla cate o baie deservind dormitoarele. Acesta este luminat cu ajutorul unor lucarne patrate.
Terasele sunt placate cu granit de dimensiuni mari si se intersecteaza cu gazonul gradinii cu ajutorul unor benzi din granit gri si pavele. Fatadele dinspre gradina sunt complet vitrate astfel spatiul interior comunica cu exteriorul, iar beneficiarii se pot bucura de privelistile inconjuratoare.
Arhitect: Przemek Kaczkowski & Ola Targonska
Locatie: Wroclaw, Polonia
Anul constructiei : 2011
Suprafata totala construita : 253 mp
Fotograf: Sebastian Oleksik
- Sursa: www.plataformaarquitectura.cl
- arhipură | pur si simplu arhitectură …




































Din pura curiozitate va intreb din ce este facut acoperisul si cum se scurg apele cauzate de ploi?
Va multumesc anticipat!
Din cate observ eu , acoperisul este realizat in terasa, asemenea blocurilor de pe la noi(probabil planseu din beton + straturile necesare termoizolarii si hidroizolarii casei), iar in zona livingului are o mica panta.
Un exemplu :
http://building.dow.com/europe/ro/applications/term/circ/ter.htm