Situata pe Muntele Kamakura, situl ofera o vedere uimitoare spre golful Sagami. Clientii, un cuplu sot si sotie , care locuiau intr-un condominiu in centrul orasului Tokyo, s-au indragostit la prima vedere de aceasta locatie, si au decis sa se mute aici.
Sotul este un pasionat de arhitectura ce a mers in numeroase excursii prin europa in timp ce lucra in Marea Britanie, si a decis ca pe langa noua casa, doreste si un atelier de lucru pentru sotia sa. In consecinta au decis sa creeze o piesa moderna de arhitectura in care fiecare detaliu sa transmita gustul estetic unic japonez pentru oaspetii internationali ce ar urma sa le calce pragul.
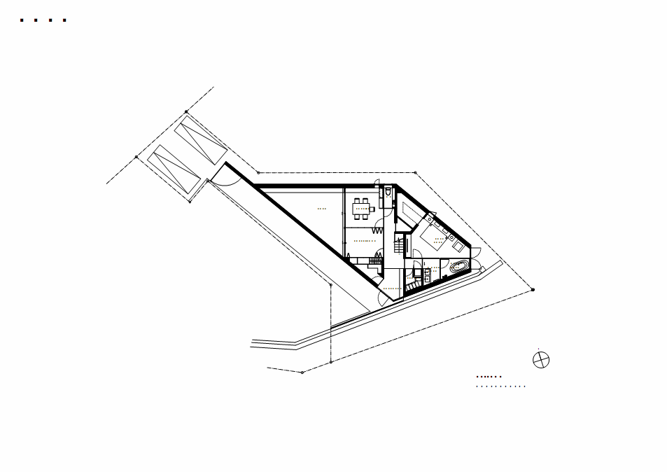
Casa este compusa din volume dreptunghiulare cu baze din beton pentru care a fost ales un pigment fotocatalitic alb aplicat.Aceste volume sunt decalate pentru a crea un efect de suprapunere ce transmite o sensibilitate moderna in timp ce incorporeaza un anumit estetic oriental. Pe masura ce coboara panta ingusta spre ocean , pilotii triunghiulari de la intrare isi fac prezenta in priveliste. Copacul memorial plantat in curtea exterioara in afara primului etaj unde se afla atelierul, asigura un oarecare grad de intimitate.
Dormitorul cu pereti de sticla la baie, permite o experienta neobisnuita prin utilizarea zonei verzi din jur ca un „peisaj imprumutat” si se creeaza o atmosfera relaxanta similara cu cea a unui hotel de statiune.Spre deosebire de intimitatea de la primul etaj, al doilea etaj este un mediu deschis, mult mai spatios.
Dimensiunile ferestrelor au fost calculate pentru a incadra vederi panoramice spre padurea si oceanul din jur, in timp ce spatiul de depozitare ,chiuvete si alte facilitati secundare au fost inglobate cu grija in pereti.
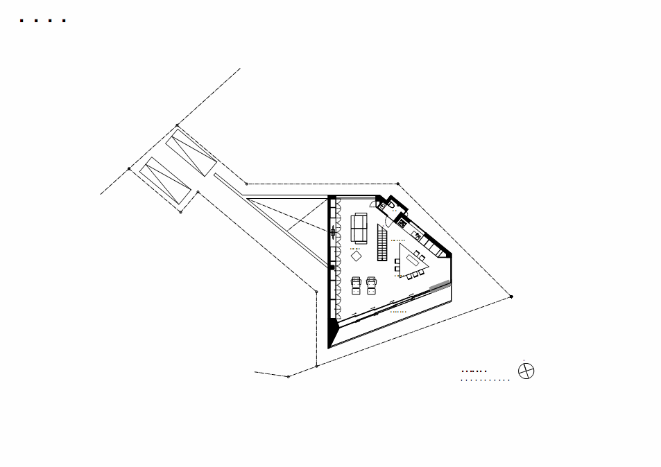
Caracteristica cea mai izbitoare a acestei case este acoperisul pentagonal alcatuit atat din otel cat si din grinzi de lemn.Desi structura acoperisului este indrazneata regasim , de asemenea, multa frumusete si in micile detalii artizanale. Deschiderea usilor glisante permite locuitorilor acestei locuinte de lux sa se conecteze cu natura din afara casei, ce infrumuseteaza si mai mult cladirea si o inradacineaza in spiritul japonez consacrat.
Arhitect: APOLLO Architects & Associates – Satoshi Kurosaki
Locatie: Kamakurayama, Kamakura , Japonia
Anul proiectarii/executiei : 2011
Suprafata desfasurata : 182 mp
Fotograf : Masao Nishikawa
- Sursa: www.archello.com
- arhipura | pur si simplu arhitectură …





























5 gânduri despre &8222;Casa Le49 | Japonia&8221;