Fiind un cuplu de tineri poate fi o provocare din toate punctele de vedere . Poate esti la inceput de drum in cariera ta , economisind pentru a cumpara o casa sau pur si simplu vrei sa te pregatesti pentru o viata mai buna alaturi de persoana iubita. Pe deasupra, facand acest pas impreuna pentru prima data poate fi stresant, dar in acelasi timp si entuziasmant.
Cativa designeri talentati au decis sa-si asume aceasta provocare, oferind doua modele frumoase de apartamente studio care ar da oricarei pereche de tineri casatoriti sau doar care doresc sa se mute impreuna, un spatiu suficient de elegant pentru a-l imparti si sa se bucure de o viata fericita. Primul apartament modern amenajat vine de la biroul de arhitectura int2architecture, în timp ce al doilea este realizat de designerul Art Ugol.
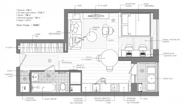
Fiecare amenajare are prezentat la final si cate un plan de mobilare.
1|
2|



























cam la ce pret ar ajunge un plan pentru amenajare interioara la un apartament similar?
Depinde de la o firma la alta, si pleaca cam de la 10 euro / mp, dar conteaza mult si ce vrei sa iti ofere , poti opta doar pentru cateva idei de amenajare a spatiului pana la efectiv sa te ajute sa achizitonezi obiectele necesare mobilarii , finisaje, materiale etc.