Proiectul implica un total de sase case particulare, fiecare avand la baza diferite aspecte de reducere a emisiilor de CO2 din constructie, folosire si intretinere a casei. Intretinerea casei in mod gratuit face parte dintr-un proiect larg de dezvoltare: Casele cu emisii reduse de CO2 <<< mai multe detalii.
Intretinerea casei in mod gratuit se focuseaza pe durata de viata si examineaza cat de mult CO2 poate fi economisit atunci cand o casa este construita si sa aiba o durata de viata de cel putin 150 de ani in timp ce acoperisul casei nu are nevoie de intretinere in primii 50 de ani din perioada de viata. Casa A a fost construita folosindu-se materiale traditionale care au dovedit ca au o durata lunga de viata, iar casa B – descrisa aici – a fost construita folosindu-se materiale noi, care se asteapta sa aiba o durata lunga de viata.
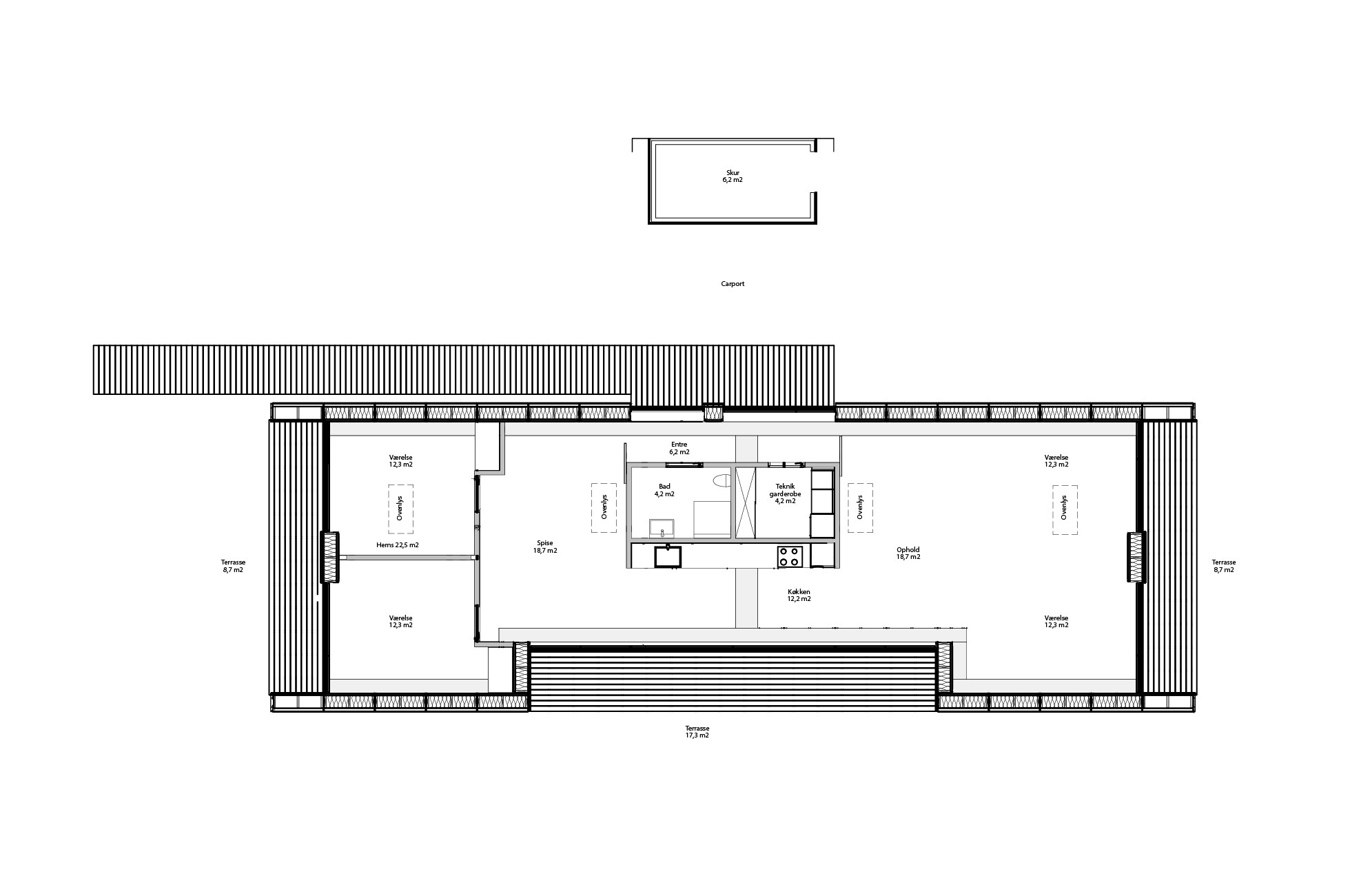
Ideea de constructie a casei B a fost realizata ca o casa lunga cu o intrare orientata spre est care acopera locatia exact in centrul longitudinal lateral al cladirii si acoperisul inclinat la 40 de grade. Interiorul casei a fost proiectat ca o “cutie” din lemn: casa in casa. Lumina patrunde prin cele 4 locuri: la intrare, prin ferestele inalte ,usile de unde incep peretii si prin cei aproximativ 10 m de portiune vitrata.
Casa B a fost construita din lemn, o alegere surprinzatoare pentru clima daneza, cu scopul de a avea o durata lunga de viata. Dar in Danemarca sunt multe case din lemn cu o ventilatie excelenta ce duce la o durata lunga de viata a acestora. Structura din cherestea a casei B asigura o ventilatie continua pe toate laturile, mai ales sub casa care a fost ridicata pe o serie de fundatii izolate.
Lemnul, sticla si aerul:
Structura portanta a casei este din lemn: 18 cadre cu auto-sustinere din placaje de lemn de inalta rezistenta prefabricate si asamblate la o fabrica de componente si transportate la locul constructiei. Scopul aici a fost de a fi realizata constructia cu mare precizie si de a evita orice prejudiciu ce ar putea rezulta din inexactitatile tipice ale unui santier de constructii. Obiectivul este o intretinere ieftina si o durata lunga de viata. Acest proces combina cadre exterioare și interioare ale cladirii într-o singura unitate , creand o cladire complet deschisa fara stalpi , grinzi sau elemente de tensiune , asigurand flexibilitatea deplina a casei și o configurație de lunga durata .
Casa este echipata cu un “scut de sticla” care se incadreaza in jurul acoperisului si a intregii fatade a cladirii, protejand constructia sa din lemn de ploaie si vant. Scutul este din sticla reciclata si, in principiu, este indestructibila. Scutul este format dintr-o suprafata continua, neintrerupta de conducte de ventilatie – asigurand din nou o viata prelungita prin evitarea scurgerii pe la articulatii. Toate ferestrele si usile sunt trase inapoi de la fatada si sunt situate in nise adanci care ofera protectie eficienta impotriva fortei naturii.
Casa este ridicata 30 cm deasupra solului si construita pe fundatiile izolate. Acest dispozitiv protejeaza casa de ploaie si in acelasi timp asigura ca aceasta este bine ventilata pe toate partile, atat sub cladire cat si sub fatada de sticla, in spatiul dintre scutul din sticla si constructia din lemn.
Căldura care este generata în diferența dintre sticla si lemn va fi utilizata într-o soluție extinsă de ventilație a aerului cald , cu economisirea unei cantități semnificative de CO2.
Reducerea emisiilor de carbon:
Emisiile de carbon de la materialele utilizate in intretinere gratuita a casei B sunt sub media normal a caselor: Casa de referinta (3.5 kg CO2 / m² / an, comparativ cu 5 kg CO2 / mp / an pentru o perioadă de 50 de ani ).
Acest lucru se datoreaza in principal in utilizarea pe scara larga a lemnului, care contribuie in mod pozitiv la economisirea globala de CO2, dar si la fundatiile care folosesc mai putin continut inalt de CO2 decat fundatiile traditionale ale Casei de referinta. Pe de alta parte, casa are un grad ridicat de carbon de la folosirea sticlei, in mare parte datorita sticlei dure de la fatada si partial din suprafata totala a ferestrei care este cu cca 50% mai mare decat intr-o casa standard.
In intretinere ambelor case – Casa B si Casa de referinta, inlocuirea materialelor calculate de-a lungul a 50 de ani reprezinta aproximativ 0,5 kg din emisiile totale de carbon ale casei.
Aceasta poate surprinde observatorul din cauza ca efectul de economisire a carbonului si intretinirea redusa nu sunt mai mici decat cele ale Casei de referinta – dar acest lucru se datoreaza faptului ca la Casa de referinta sunt mai bine plasate in acest sens. Aceasta a fost construita din caramida, care nu necesita intretinere, precum si din alte elemente mari consumatoare de CO2 din constructii cum ar fi fundatii, sticla si vata minerala – vata – rareori necesita intretinere. In acelasi timp, celelalte elemente care ar putea necesita intretinere sau inlocuire – usile, ferestrele, suprafetele interioare, etc. – sunt relativ “slabe” in ceea ce priveste emisiile de CO2 si, prin urmare, au doar un efect modest asupra calcului total de CO2. Dar este, de asemenea, important faptul ca pentru proprietarul casei, intretinerea redusa pe aceste elemente nu reprezinta o frustrare si se economisesc bani pe manopera si materiale.
Toate ca toate , rezultatele arată că, daca construcția și proiectarea- așa cum au evoluat în întreținerea – Casei B – conduc la o durată de viață extinsă pentru o casa ca un întreg , se vor reduce emisiile de carbon de-a lungul intregii durate de viață proiectate. Mai ales dacă aceasta înseamnă evitarea necesitatii de a construi o nouă casă.
Proiectul de dezvoltare a Caselor cu emisie redusa de CO2:
Întreţinerea casei Free House este una din cele şase demonstraţii de case construite în oraşul de coastă Nyborg, din centrul Danemarcei. Cinci dintre case incearca diverse moduri de a reduce emisiile de carbon; casa a sasea reuneşte aceste experienţe.
Timp de mulți ani , eforturile industriei de construcții de reducere a emisiilor de CO2 – nu fără motiv – s-au axat pe energie pentru încălzire și , prin urmare, de asemenea, pe etanșeitate și izolare . Cu toate acestea , deoarece cerințele naționale și europene de construcții devin tot mai stricte în acest domeniu , devine relevant pentru a examina modul în care industria poate reduce , de asemenea, emisiile de carbon – de exemplu , în ceea ce privește materialele și comportamentul utilizatorilor .
Obiectivul principal al proiectului de dezvoltare a” Casei cu emisie redusa de CO2”este acela de a reduce emisiile de CO2 în construirea, operarea și întreținerea unei case.
Cele șase case împărtășesc aceleași principii generale :
- Tip de clădire : – pentru o singura familie
- Dimensiune : 130-172 m²
- orientări Energie: Standarde daneze 2015
- Buget : economie normală
- Proiectare de arhitectura : larga raspandire
- Viitorul : Vanzare casa după experiment finalizat
Arhitect: Arkitema Architects
Locatie: Nyborg, Danemarca
Anul proiectarii/executiei : 2013
Suprafata desfasurata : 156 mp
Fotograf : Jesper Ray, Helene Høyer Mikkelsen


























Un gând despre &8222;Casa din lemn cu emisii reduse de CO2 | Danemarca&8221;