Amenajarea unui apartament mic este mereu o provocare si vine la pachet cu necesitatea de a gasii solutii multifunctionale care sa se potriveasca nevoilor si spatiului, fara ca acesta sa para incarcat si sufocant. Stilul minimalist este mereu castigator in astfel de provocari 🙂
Yelena Potemkin este designerul acestui apartament tip studio de numai 29 mp (fara balcon). Folosind un stil minimalist si usor industrial a reusit cu un buget modest sa mobileze acest spatiu, facandu-l functional si „aerisit”. Paleta de culori neutre si spatiile inteligente multifunctionale de depozitare (pat rabatabil integrat in mobilier) sunt ingredientele cheie ale unei amenajari reusite.
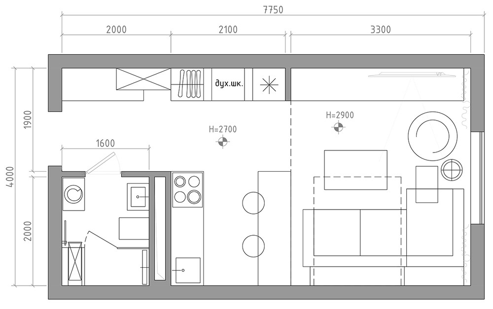
Nuantele de gri sunt cele dominante in aceasta amenajare, dar designerul a optat si pentru nuante de verde pal, tocmai pentru a pune si mai bine in evidenta stilul industrial ales pentru aceasta amenajare moderna. Zona bucatariei si baia au fost integrate intr-un cub negru lucios. Personal as fi optat pentru nuante mai deschise, tinand cont de dimensiunea apartamentului, dar in cazul acesta negrul este folosit intr-un echilibru perfect cu restul nuantelor dominante. Baia este de dimensiuni reduse si chiar daca s-au folosit tonuri inchise nu lasa impresia unui spatiu claustrofob.










3 gânduri despre &8222;Solutii multifunctionale in amenajarea unui apartament de 29 mp&8221;