Orăşelul Tepoztlan de lângă Mexico City este cunoscut pentru relaţiile sale magice cu peisajul.Un paradis pentru artiştii şi intelectualii care doresc o evadare din agitaţia oraşului Mexico City.
În acest fel, proiectul este conceput ca o casă de weekend, dar în cele din urmă poate deveni o casă pentru utilizarea de zi cu zi.Proiectul are ca obiectiv să profite de topografia terenului şi de vederile uluitoare pe care le oferă. Proiectul explorează o carcasă din beton de mici dimensiuni, relaţia dintre arhitectură şi peisaj, între om şi natură.
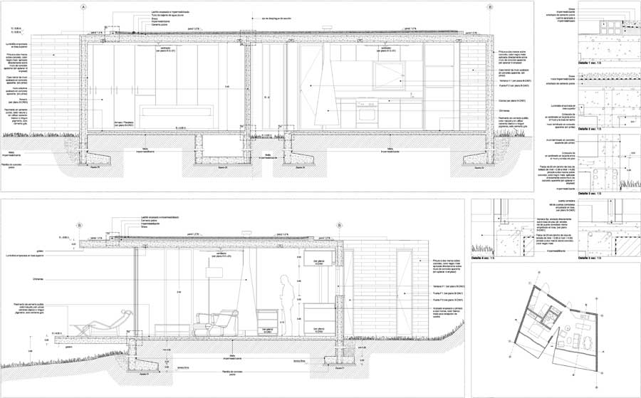
Casa este împărţită în două zone, una publică şi una pentru uz privat. Aceste două zone sunt împărţite printr-o fâşie de vegetaţie tropicală, care intră în obiectul arhitectural şi permite generarea unui sistem de ventilaţie pentru întreagă clădire. În cele din urmă, în zona frontală a casei s-au proiectat două terase mari, spaţii deschise care servesc ca extinderea a spaţiului de locuit.
Arhitect: Cadaval & Solà-Morales
Colaboratori: Eugenio Eraña, Manuel Tojal, Tomas Clara
Locatie: Tepoztlan, México City
Anul proiectului: 2011 / in constructie
Fotograf: Cadaval & Solà-Morales
- Sursa: Cadaval & Solà-Morales
- arhipură – pur si simplu arhitectură …












2 gânduri despre &8222;Bungalows LMB / proiect casa 04&8221;