Proiectul prezinta o varianta de casa moderna cu acoperis in terasa, avand aspectul unui cub modelat si decupat, cu vitraje la nivelul parterului si etajului pe toata inaltimea acestora, pentru o mai buna iluminare.
Casa a fost gandita pentru o familie de 3 membri.De la inceput s-a luat in calcul un buget redus pentru constructie astfel incat unele spatii sa imparta mai multe functiuni.
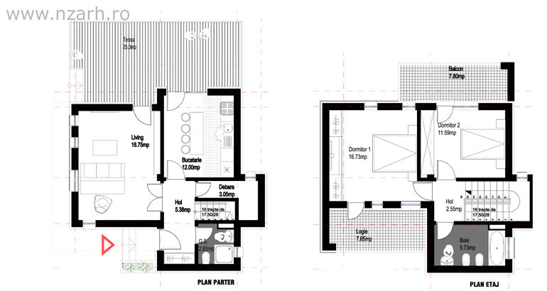
Zona de noapte este atribuita nivelului superior, iar pentru o desfasurare mai lejera in dormitorul matrimonial s-a recurs la iesirea lui in consola peste parter. Prin urmare placa dormitorului pune la adapost trecerea spre gradina si terasa din spatele casei. Terasa la randul ei face legatura cu intreaga casa prin accesul de la bucatarie si camera de zi.
Arhitect: Vasile Zastavnitchi / NZarh
Locatie: Ghermanesti, Ilfov
Suprafata teren : 300 mp
Suprafata construita : parter=67 mp / etaj=60 mp
Randari : Vasile Zastavnitchi
- Sursa: www.nzarh.ro
- arhipură – pur si simplu arhitectură …












o asfel de casa imi doresc si eu.Este una pe gustu meu,nu e nici mare si spatioasa,imi place este superba.
Si mie imi place.Ofera strictul necesar (peste nivelul mediu) pentru o familie cu un copil.Sper sa ajungi, sa realizezi o astfel de casa.Bafta !
am fundatia facuta sar plia pe modelul asta mai multe detalii as dori
Aveti datele arhitectului la sfarsitul articolului, luati legatura cu dansul si sunt mult mai sigur ca o sa primiti toate informatiile de care aveti nevoie.
la ce valoare credeti ca s-ar ridica construirea acestui model de casa?
Strit casa , puteti calcula la un pret de 350-400 euro/mp construit, pret mediu