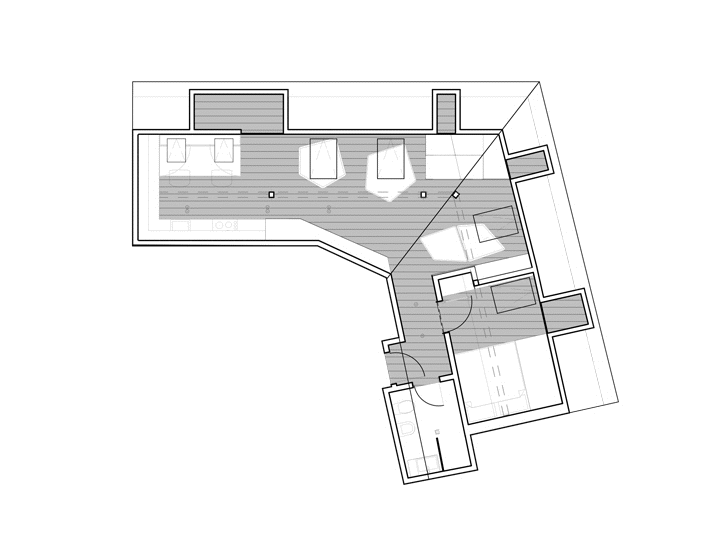
Situat la mansarda unei cladiri din tesutul istoric al Timisoarei, apartamentul amenajat de Zeno Ardelean, prezinta un spatiu dificil de compartimentat si mobilat. Provocarea a fost redistribuirea totala a compartimentarii initiale. Astfel zona de noapte se limiteaza la latura scurta a apartamentului, iar zona de zi insiruie livingul, locul de luat masa si bucataria de-a lungul laturii vestice.
La cel mai abstract nivel, proiectul se reduce la o banda care infasoara zona de zi si la un cub care inchide zona de noapte. Un mare aport asupra proiectului l-a avut mobilierul integrat, custom-made. Dat fiind spatiul dificil, foarte ingust si lung, mobilarea accentueaza forma si e neintrerupta, creand senzatia de spatialitate. De asemenea, spatiile de depozitare sunt ascunse fie in peretii exteriori, dinspre cornisa mansardei, fie in peretele interior. Niciun element din mobilierul fix nu cauta sa iasa in evidenta, totul devine un fundal pentru canapeaua modulara. Aceasta, impreuna cu masuta custom-made anima spatiul in diverse situatii, devenind la nevoie pat, canapea, fotolii, in functie de nevoile beneficiarului.
Cromatica apartamentului si distribuirea acestuia cauta sa puna in evidenta exteriorul apartamentului, un cartier istoric de secol XIX care inca isi pastreaza farmecul. Masa de dining rabatabila si locul de citit sunt directionate spre exterior si inrameaza portiuni de-a lungul strazilor.


























4 gânduri despre &8222;Apartament modern amenajat in mansarda unei cladiri din tesutul istoric | Timisoara&8221;