Terenul pe care urmeaza sa fie amplasata casa e situat in partea sudica a orasului, intr-o zona rezidentiala joasa ca regim de inaltime, dar cu densitati ale construitului diferite. Dimensiunile parcelei sunt mai degraba modeste, avand frontul la strada de aproape 13 metri si o desfasurare in adancime de ceva mai mult de 30 de metri. Accesul pe strada pe care se afla terenul se face dintr-una din arterele importante ale urbei. Orientarea lotului este aproximativ pe directia est-vest, avand frontul catre rasarit. Parcela beneficiaza de vecinatati aerate, de spatii verzi, doar pe limita nordica aflandu-se constructii.
Planimetria casei si dispunerea spatiilor a pornit de la trei premize: forma relativ ingusta a terenului, vecinatatile si orientarea terenului. In plus, constrangerile legate de Codul Civil si Planul Urbanistic General. Astfel ca solutia logica era aceea de a dezvolta cladirea pe adancimea lotului. Functional casa e impartita dupa schema clasica, obisnuita: la parter spatiile diurne, iar la mansarda, cele nocturne. Cladirea va avea o retragere fata de front, urmand sa se alinieze cu resedinta vecina din dreapta.
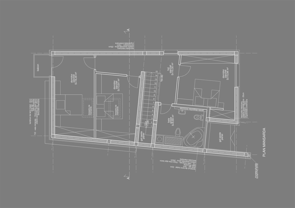
La parter, corpul scarii desparte spatiile deservite de cele servante, accesul intre cele doua facandu-se pe ambele parti laterale. Datorita faptului ca se impunea o retragere de 1,90 m fata de latura nordica, distanta fata de cea sudica devenea prea mica, astfel s-a impus forma oblica a laturii sudice a cladirii, obtinandu-se un recul al camerei de zi fata de limita proprietatii.
Unul din punctele de pornire in desenarea acestei case a fost ca aspectul acesteia sa fie unul urban, modern si sobru. Asta insemna un acces bine definit si o fatada catre strada de o anumita tinuta arhitecturala. Prin impingerea peretelui intrarii s-a cautat crearea un spatiu tampon, al (pe)trecerii dinspre afara inspre inauntru, si care nu in ultimul rand are si rol practic de protectie.
Miscarea in interiorul locuintei urmareste liniile principale ale planimetriei: longitudinala pe nivele – cea publica pe latura sudica, cea privata pe cea nordica, si transversala – scara. Parcursul catre camera de zi este alungit in mod voit, printr-un podim inaltat cu doua trepte fata de cota pardoselii, de-a lungul vitrajului generos. In coltul spatiului diurn va fi amenajata o jardiniera la nivelul parapetului ferestrei pe colt, ce va filtra lumina dinspre sud-vest.
Volumetria cladirii este una simpla, clara – un corp tesit ce are ca terminatie cu un perete-plan catre strada. Imaginea unitara este intarita si de utilizarea aceluiasi tip de material atat pentru fatada laterala cat si pentru invelitoare: lamele de lemn. Coltul dinspre sud-vest al cladirii este accentuat print-o fereastra pe doua laturi pozitionata in afara planurilor fatadelor fixate de intr-un cadru din beton aparent vopsit. Folosirea lemnului ca material de finisaj ofera posibilitatea de a ventila fatada si acoperisul, lucru absolut necesar, avand in vedere orientarea sudica a acestora. Scurgerea apelor meteorice se face printr-un jgheab mascat in structura acoperisului, panta rezultand geometric din intersectia celor doua planuri. Peretele frontal al fatadei principale se detaseaza atat ca forma si inaltime cat si ca finisaj de acoperis si peretele sudic. Alb-lis versus culoare natur-textura. Abstractiune versus natura. Peretele vestic posterior de forma trapezoidala este compus vizual din vitrajul pe colt al camerei de zi si un gol vertical cu terminatie fina pe linia acoperisului, al unuia dintre dormitoarele de la mansarda.
In partea din spate se va amenaja o terasa la cota parterului marginita pe doua laturi de jardiniere. Platforma acesteia se va prelungi longitudinal, de-a lungul fatadei sudice, insa paralel cu limita de proprietate. Partea din spate a terenului va fi amenajata ca spatiu verde-livada.
Arhitect: Bot Lucian Cosmin – BIA
Locatie: str. Oedip nr.22, Timisoara
Anul proiectarii: 2008
Suprafata construita: 184mp
- Sursa: A_TA 2008
- arhipură – pur si simplu arhitectură …










3 gânduri despre &8222;Casa C / proiect casa 06&8221;