Biroul de arhitectura – AWstudio prezinta portofoliu proiectelor “TIP”. Aceasta rubrica este alcatuita din propuneri de proiecte ce vizeaza sectorul constructilor de tip rezidential (case individuale si case colective de dimensiuni mici si medii).
Proiectele de vile au la baza o abordare tehnico-functional-estetica, reprezentand o proiectare standard ce nu implica costuri ridicate in realizarea constructiei, cu o functiune bine stabilita si cu un rezultat volumetric determinat de o arhitectura moderna reprezentativa pentru casele urban/rurale ale perioadei contemporane.
Arhitect: AWstudio – Mihai Neagu
Titlu: PROIECT CASA AW021
Suprafata construita la sol : 138mp
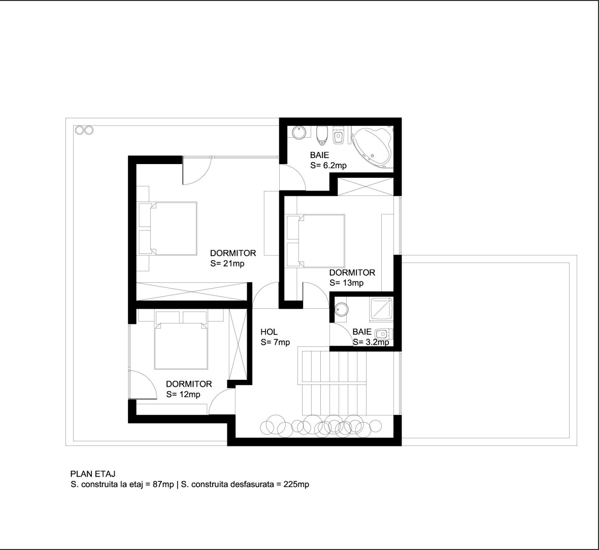
Suprafata construita desfasurata : 225mp
Suprafata utila desfasurata : 196mp
- Sursa: www.awstudio.ro / proiect-e-case.ro
- arhipură – pur si simplu arhitectură …













