Aceasta casa este destinata unei familii cu 2 fete mici si este situata la 30km de Praga,Cehia.
Situata la marginea dealului de deasupra satului, casa are vedere la peisajul rural înconjurător, cu o priveliste splendida spre vechiul castel Točník. Chiar şi grădină mică are avantajul acestei privelisti ce devine nesfârşită.
Forma modestă a casei a fost proiectat tinandu-se cont de bugetul restrans, precum şi de caracterul vernacular din satul din apropiere. Arhitectura sa urmeaza arhetipul simplu de casa rurala cu acoperiş ce se termina in frontoane.
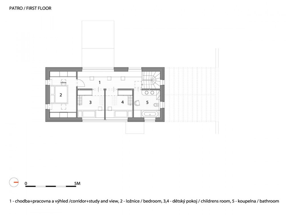
Casa include o bucătărie, locul de luat masa şi zonă de living ce se deschide spre grădina din spate prin intermediul unei punti din lemn de mari dimensiuni.La etaj are un dormitor matrimonial, două camere mici pentru copii, cu uşi glisante, care au rol de table colorate pentru desenat.In holul de la etaj este amenajata o zona de lucru cu un birou lung, de unde se poate observa panorama interesanta a satului din apropiere
Arhitect: A1 Architects
Locatie: Beroun, Czech Republic
Echipa proiect : David Maštálka, Lenka Křemenová
Suprafata construita : 115 sqm
Anul proiectului: 2009
Fotograf: A1 Architects
- Sursa: A1 Architects / www.archdaily.com
- arhipură – pur si simplu arhitectură …
























2 gânduri despre &8222;Casa mica cu priveliste impresionanta&8221;