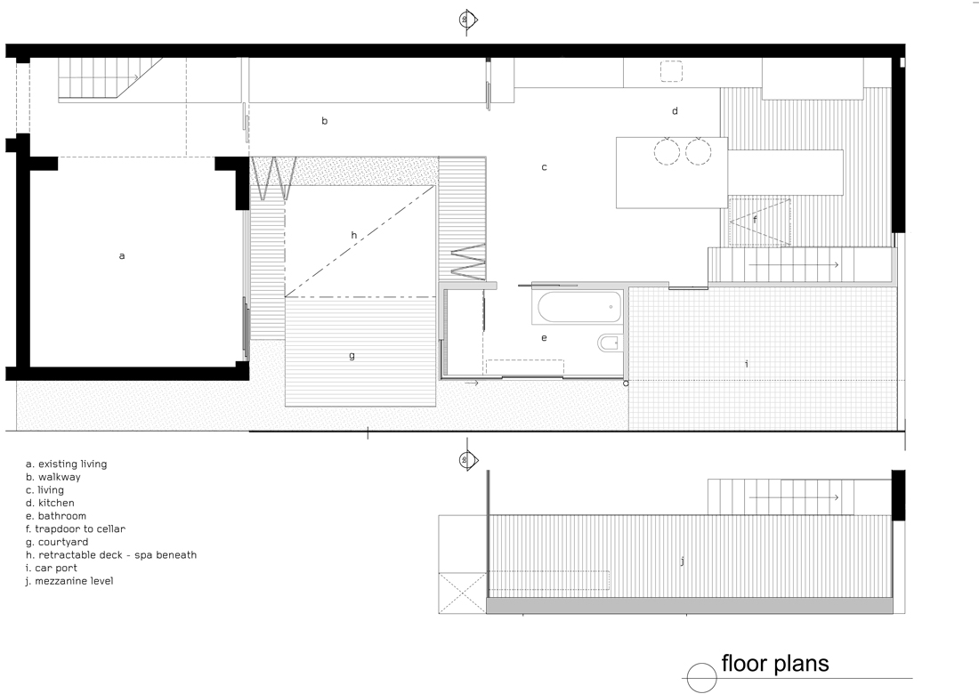
Arhitect : Andrew Maynard Architects
Locatie : Melbourne, Australia
AMA Team : Andrew Maynard, Mark Austin, Matthew McClurg
Anul proiectului : 2008
Suprafata construita : 120 mp
Fotograf : AMA
- Sursa: Andrew Maynard Architects / www.archdaily.com
- arhipură – pur si simplu arhitectură …






































2 gânduri despre &8222;Vader House / Extindere&8221;