Separarea fata de „imaginea” vecinatatilor a determinat aparitia conceptului unei case „cetate” ce urma sa protejeze samburele – un interior rafinat cu tendinte minimaliste.
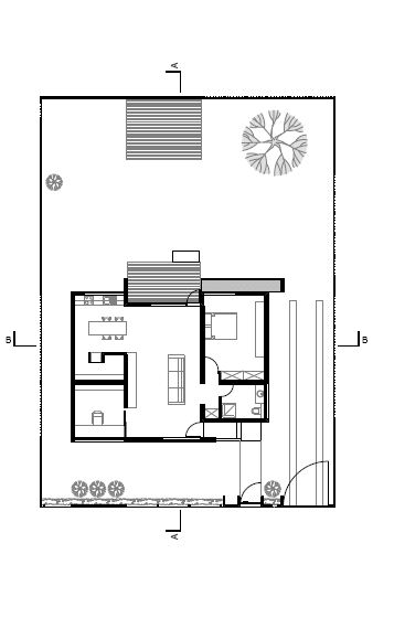
Casa incepe de pe limitele de proprietate iar curtea face parte din casa. Se creaza astfel 2 spatii interioare unul inchis – spatiul de locuit – si unul deschis – curtea – ce dialogheaza folosind ca limbaj spatiul limitei: se deschid, se privesc, se intrepatrund.
Limita exterioara – imprejmuirea parcelei – joaca un rolul de mediere a relatiei cu vecinatatea, prin alternarea de portiuni luminoase (albe) dar opace cu portiuni intunecoase din lemn de nuanta inchisa ce permit trecerea vizuala prin intermediul unor fante inguste, fragamentand imaginea.
Locuinta, ordonata cartezian in plan, se dezvolta spatial pe directia ramasa valabila: verticala. Cerul devine singurul elementul exterior care intra in dialog cu Spatiul. Astfel, fiecare spatiu primeste o inaltime corespunzatoare functiunii iar lumina marcheaza trecerea timpului dea lungul zilei. Apusul real se transforma in “rasarit “ ce urca pe Cerul casei.
Bucataria: spatiul in care ziua incepe
Livingul: spatiul in care apune soarele
Biroul: se deschide catre exterior prin „spargerea” limitei
Dormitorul: intim
Curtea:Alma
Arhitect : BIA / Bot Lucian Cosmin ,Bogdan Rat
Locatie : Sacalaz
Proiectare: 2008
Constructie: 2009
Suprafata construita: 110 mp
Buget: 500 euro/mp
Fotograf : Ovidiu Micsa
- Sursa: A_TA 2009
- arhipură – pur si simplu arhitectură …















Un gând despre &8222;Casa B2&8221;