Casa este situata intr-un cartier de vile individuale, intre cladiri haotice si variat amplasate pe teren, aceasta amplasare fiind tipica pentru majoritatea suburbiilor contemporane poloneze.
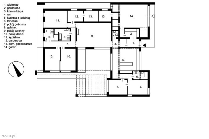
Clientul si-a dorit o casa doar pe parter, fiind formata dintr-o bucatarie cu loc de luat masa, living, zona de noapte privata, garaj, spatii tehnice. Casa nu este introvertita din dorinta beneficiarului, aceasta se deschide pe trei laturi catre generoasa gradina. Majoritatea zonelor interioare sunt desfasurate si in jurul unei terase interioare care a devenit un spatiu intim de petrecere a timpului liber cu prietenii in timpul lunilor calde.
Volumetric casa se desfasoara pe orizontala, majoritatea spatiilor fiind acoperite cu acoperis terasa, si doar volumul livingului si al bucatarieri prezinta un acoperis intr-o apa, spargand astfel monotonia cladirii.
Arhitect: RS+ Robert Skitek
Locatie: Tychy, Polonia
Colaborator: Robert Skitek, Robert Wilczok, Barbara Kotas, Dawid Marszolik
Anul finalizarii :2011
Suprafata totala construita : 371 mp
Fotograf : Tomasz Zakrzewski
- Sursa: RS+ Robert Skitek / www.archdaily.com
- arhipură – pur si simplu arhitectură …

























